Tư vấn thiết kế móng nhà ở dân dụng 1,2,3 tầng, cấp 4 Chi tiết đầy đủ để bạn có thể thi công KN41086
Xây dựng nhà ở là công việc quan trọng trong cuộc đời mỗi người, để có được những công trình nhà đẹp như ý muốn và bền vững theo thời gian, mỗi gia chủ cần đưa ra rất nhiều quyết định trong khi xây dựng như làm móng ra sao, mái nhà như thế nào hay cả những chi tiết như lựa chọn vật liệu xây dựng...
Rất nhiều những đầu việc bạn phải làm nếu như bạn không nhờ đến một đơn vị thiết kế chuyên nghiệp. Để giảm bớt được nỗi lo lắng của khách hàng cũng như chia sẻ giúp bạn một phần công việc trong giai đoạn bận rộn này, chúng tôi sẽ tư vấn thiết kế móng nhà ở dân dụng 1, 2, 3 tầng, nhà cấp 4 đầy đủ và hoàn thiện giúp bạn có thể thi công được. Bản vẽ thiết kế móng nhà có thể được ứng dụng trong các mẫu thiết kế nhà cấp 4 đẹp, hay mẫu nhà 2 tầng đẹp, thiết kế biệt thự 3 tầng,...
Tư vấn thiết kế móng nhà ở dân dụng 1,2,3 tầng, cấp 4 Chi tiết đầy đủ để bạn có thể thi công.Tùy vào từng mẫu nhà mà có thể sử dụng các loại móng khác nhau như móng đơn, móng cọc, móng băng, móng bè....
Móng băng là gì? Móng băng là loại móng có chiều dài rất lớn so với chiều rộng thường dùng dưới nhà, dưới tường, dưới dãy cột, khi dùng móng băng dưới dãy cột gọi là móng băng giao thoa.
Móng cọc là gì? Móng cọc là loại móng được đặt trên các đầu cọc tạo thành các nhóm cọc liên kết với đài và giằng móng tạo thành khối móng vững chắc
Khi nào thì dùng móng băng? Móng băng được khuyến cáo dùng cho các nhà có chiều cao tầng không lớn, thường nhỏ hơn hoặc bằng 4 tầng và được đặt trên nền đất tốt.
Khi nào thì dùng móng cọc? Móng cọc được khuyến cáo dùng với nhà có tải trọng lớn, địa hình phức tạp, nền đất yếu như ao hồ, đất mượn, đất vượt....
Tính toán sơ bộ móng băng như thế nào? Chọn chiều rộng băng và chiều cao dầm được các kỹ sư của angcovat tính toán rất chi tiết. ngoài ra nếu bạn không phải kỹ sư, bạn cũng có thể tính toán được dựa trên những kinh nghiệm thực tế như sau.
Chọn kích thước móng băng?, Chiều cao của móng băng phụ thuộc vào nhịp của cột và chiều cao tầng, đối với nhà.
Nhà 2 tầng chọn chiều cao dầm móng bằng 1/10 chiều dài của nhịp lớn nhất, ví dụ bước gian lớn nhất của toàn bộ ngôi nhà là 5m thì chiều cao của móng băng 2 tầng là 1/10*5m = 0.5m, Chiều rộng móng băng là 0.33m, như vậy dầm móng băng có kích thước là 33x50, bề rộng cánh móng băng dao động từ 1-1.2m tùy thuộc vào điều kiện địa chất, thép dầm móng băng từ 6D18 - 6D20 là hợp lý, thép cánh móng băng, dùng thép D10 chạy dọc băng, D12 chạy ngang băng, hoặc dùng đều D12 1 lớp đan A15cm.
Nhà 3 tầng chọn chiều cao dầm móng bằng 1/8 chiều dài của nhịp lớn nhất, ví dụ bước gian lớn nhất của toàn bộ ngôi nhà là 5m thì chiều cao của móng băng 2 tầng là 1/8*5m = 0.62m, Chiều rộng móng băng là 0.33m, như vậy dầm móng băng có kích thước là 33x65, bề rộng cánh móng băng dao động từ 1.2-1.4m tùy thuộc vào điều kiện địa chất, thép dầm móng băng từ 6D20 - 6D22 là hợp lý, thép cánh móng băng, dùng thép D10 chạy dọc băng, D12 chạy ngang băng, hoặc dùng đều D12 1 lớp đan A15cm.
Nhà 4 tầng chọn chiều cao dầm móng bằng 1/7 chiều dài của nhịp lớn nhất, ví dụ bước gian lớn nhất của toàn bộ ngôi nhà là 5m thì chiều cao của móng băng 2 tầng là 1/7*5m = 0.72m, Chiều rộng móng băng là 0.33m, như vậy dầm móng băng có kích thước là 33x75, bề rộng cánh móng băng dao động từ 1.4-1.6m tùy thuộc vào điều kiện địa chất, thép dầm móng băng từ 6D22 - 8D22 là hợp lý, thép cánh móng băng, dùng thép D10 chạy dọc băng, D12 chạy ngang băng, hoặc dùng đều D12 1 lớp đan A15cm.
Chọn số lượng cọc? Thường khi thiết kế nhà dân sẽ không có kết quả khảo sát địa chất, nên việc tính toán chọn sơ bộ số lượng cọc cho chính xác và không lãng phí là điều rất quan trọng, nó ảnh hưởng trực tiếp đến yếu tố kinh tế kỹ thuật của chủ đầu tư.
Số lượng cọc trên một đài phụ thuộc vào tải trọng truyền vào đầu cột, độ sâu chôn móng, tuy nhiên độ sâu chôn móng không ảnh hưởng quá lớn đến việc quyết định số lượng cọc nên việc tính toán số lượng cọc được giả định như sau:
Tải trọng tường, tải trọng sàn, tải trọng động do quá trình sử dụng tổng cộng bằng 1,2-1,5 tấn/m2 x diện chịu tải của cộtx hệ số moment 1.2x số tầng
Ví dụ: tính số cọc 200x200 có sức chịu tải 20t/đầu cọc, cho cột có diện chịu tải 20m2(5*4) => số cọc = 1.2*1.2*5*20=144 tấn/20 = 7.2 cọc => chọn 8 cọc
Lựa chọn máy ép cọc?
- Sức chịu tải của cọc 200x200 = 20T nghĩa là đầu cọc đơn chịu được tải trọng tĩnh là 20T, tải trọng động là tải trọng dồn lên đầu cọc trong quá trình thi công, tải trọng động thường = 2-3 lần tải trọng tĩnh, đó cũng chính là tải trọng ép lên đầu cọc. do đó tải trọng động ép lên đầu cọc 200*200 là 20*2-20*3T = 40-60T
Khi chọn máy ép cọc thì lực ép phải lớn hơn 15% tải trọng động => máy ép cọc phải >=75T mới ok.
Khi ép cọc sẽ có một bảng quy đổi từ đồng hồ ép ra tấn thực tế ép được, chỉ cần xem chỉ số trên đồng hồ là có thể tự giám sát được công trình của bạn

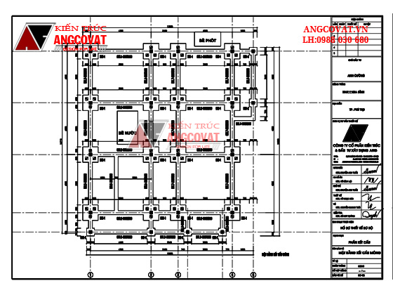
Bản vẽ mặt bằng định vị cọc thể hiện tim trục giữa các đài cọc, khoảng cách các cọc, số lượng cọc, trình tự thi công ép cọc...các ghi chú trong quá trình thi công

Mặt bằng đài móng thể hiện kích thước móng trên các đài cọc, tên đài, tên dầm, toàn bộ kích thước.





Trên đây là hướng dẫn cơ bản giúp bạn có được công trình nhà đẹp nhất bạn mong muốn. Ngoài ra nếu bạn còn thắc mắc về hồ sơ thiết kế công trình mời bạn tham khảo tại bài viết: Hồ sơ thiết kế nhà, Những mẫu nhà đẹp tại: Mẫu biệt thự đẹp
Chủ đề hay về kiến trúc- xây dựng bạn có thể tham khảo tại: Bản vẽ cad bể phốt tự hoại
Liên hệ tư vấn thiết kế miễn phí: KS Quân: 0985829320
Gửi yêu cầu tư vấn
Khách hàng vui lòng gọi điện vào hotline, Gửi yêu cầu tư vấn, Comment yêu cầu tư vấn dưới mỗi bài viết. Chúng tôi sẽ xử lý và trả lời yêu cầu tư vấn khách hàng trong 8h làm việc.
CÔNG TY CỔ PHẦN KIẾN TRÚC VÀ ĐẦU TƯ XÂY DỰNG ANG
Trụ sở: 211 - Khương Trung - Thanh Xuân - Hà Nội
Văn phòng: Số 137 Nguyễn Xiển - Thanh Xuân - Hà Nội.
Chi nhánh HCM: KDC Thới An, phường Thới An ,quận 12, TPHCM.
Chi nhánh Đà Nẵng: 268-270 đường 30/4, Quận Hải Châu, TP Đà Nẵng.
Hotline: 0988030680 - Tel: 02466622256 - Email: angcovat.vn@gmail.com

Bình luận