MỘT HỒ SƠ THIẾT KẾ BẢN VẼ THI CÔNG NHÀ BAO GỒM NHỮNG GÌ?
Một số khách hàng khi chưa tiếp xúc với hồ sơ thiết kế lần nào( Cũng dễ hiểu vì cả đời người xây nhà có 1 2 lần) chỉ hình dung. Một hồ sơ thiết kế bản vẽ thi công gồm có ảnh phối cảnh, các mặt bằng. Đúng, nhưng đó chỉ là một phần nhỏ trong tập hồ sơ thiết kế bản vẽ thì công. Vậy Một hồ sơ thiết kế bản vẽ thi công nhà bao gồm những gì? Xem thêm =>> các kinh nghiệm xây nhà
Chúng tôi xin đưa ra bộ hồ sơ Biệt thự 2 tầng mái thái - Chủ đầu tư Anh Trung, Hưng Yên làm ví dụ.

Đầu tiên tôi giới thiệu phần danh mục bản vẽ để các bạn dễ hình dung, Danh mục bản liệt kê đầy đủ các bản vẽ trong một hồ sơ công trình
Tổng cộng một bộ hồ sơ khoảng từ 60-200 bản vẽ A3 chi tiết các phần kiến trúc, kết cấu, điện, nước, tùy vào mức độ phức tạp của công trình mà số lượng bản vẽ thiết kế nhà nhiều hay ít, các bản vẽ được sắp xếp khoa học theo đúng quy trình thi công.

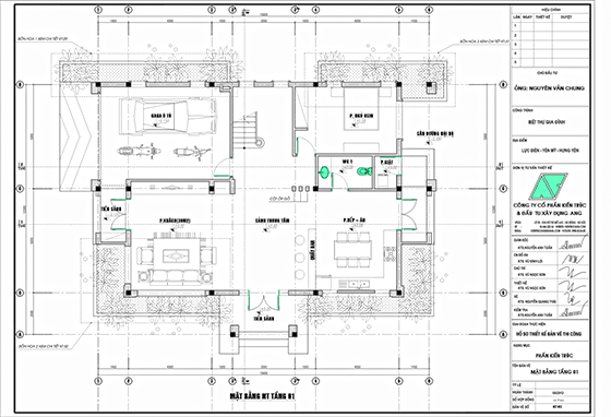
Mặt bằng nhà 2 tầng
Phần mặt bằng kiến trúc gồm có mặt bằng tất cả các tầng nhà, diễn tả đầy đủ công năng, chi tiết bố trí nội thất, các bản vẽ định vị nội thất, bản vẽ triển khai xây dựng với đầy đủ kích thước đến tận chi tiết, thay vì bạn phải đau đầu suy nghĩ xem bố trí công năng sao cho phù hợp thì các kiến trúc sư đã làm việc này và tư vấn cho bạn một các tốt nhất, phù hợp nhất với nhu cầu sống của bạn.
Và một điều quan trọng nữa là tỷ lệ giữa các phòng cũng phải đảm bào về không gian sống và tỷ lệ với chiều cao tầng, và các phòng cũng phải đảm bảo các yếu tố về ánh sáng và gió tự nhiên.

Mặt đứng nhà 2 tầng đẹp
Phần mặt đứng, diễn tả đầy đủ các ý tưởng kiến trúc qua bản vẽ mặt đứng và mặt đứng triển khai như, màu sơn, vật liệu, trích các chi tiết mặt đứng, từ mặt đứng này bạn có thể hình dung sơ bộ được hình dạng ngôi nhà mình.

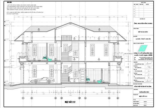
Mặt cắt nhà 2 tầng
Mặt cắt diễn tả cao độ, kích thước trong phòng, hiểu các kết cấu chính thông qua mặt bằng và mặt cắt, với mặt cắt này đội thợ thi công cho gia đình bạn sẽ hình dung được từng ngõ ngách các chi tiết,
Với mặt cắt này sẽ cung cấp cho đội kỹ thuật các lớp chi tiết sàn, như sàn mái gồm có lớp gì? sàn tầng có lớp gì? sàn tầng 1 có các lớp gì? Điều mà trước khi làm nhà có thể bạn chưa hình dung ra.

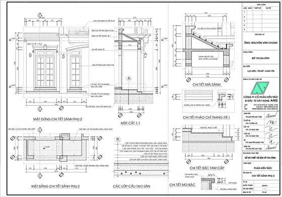
Bản vẽ chi tiết kiến trúc
Chi tiết kiến trúc diễn tả các ý tưởng kiến trúc để hiện thực hóa thi công, với chi tiết kiến trúc như vậy,
Căn nhà bạn sẽ được lột tả một cách kỹ lưỡng hơn, tại các chi tiết kiến trúc này chúng tôi đã ghi chú đầy đủ các lớp cấu tạo và chỉ định vật liệu nên trong quá trình thi công, bạn hoàn toàn có thể yên tâm.

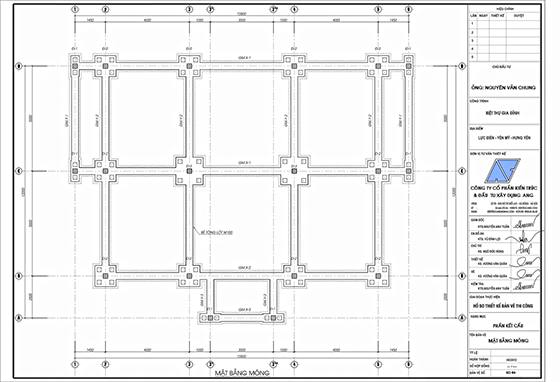
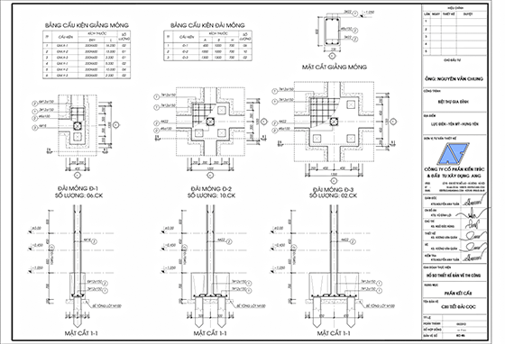
Thiết kế móng nhà 2 tầng
Bản vẽ định vị móng - bản vẽ này sẽ giúp đơn vị thi công định vị được các vị trí móng đặt cột và giằng móng với nhau, kích thước cơ bản vủa móng

Bản vẽ chi tiết móng nhà
Bản vẽ chi tiết móng, ngoài ra còn có định vị cột dầm sàn và các chi tiết của từng cấu kiện

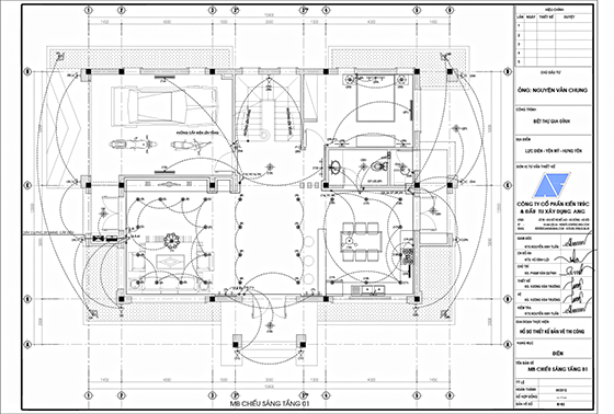
Bản vẽ mặt bằng cấp điện
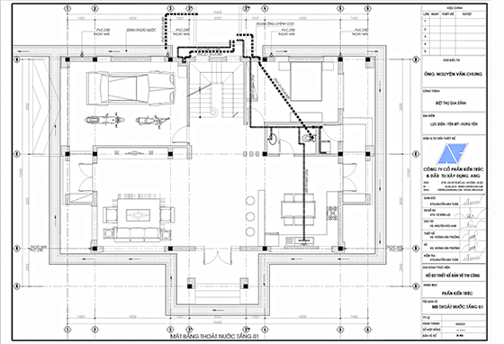
Các mặt bằng bố trí điện nước, sơ đồ nguyên lý, và các bảng thống kê đầy đủ để thi công

Bản vẽ mặt bằng cấp thoát nước
Trên đây là toàn bộ một bộ hồ sơ bản vẽ hoàn chỉnh để giải thích giúp bạn câu hỏi Một bộ hồ sơ bản vẽ thi công bao gồm những gì?
Tóm lược sơ bộ 1 bộ hồ sơ thiết kế bản vẽ nhà bao gồm những gì?
2.1 Phần kiến trúc
- Mặt bằng, mặt đứng, mặt cắt
- Ảnh phối cảnh
- Chi tiết thang
- Chi tiết vệ sinh
- Chi tiết lát sàn
- Chi tiết cửa
- Chi tiết cổng hàng rào(Miễn phí - nếu có)
2.2 Phần kết cấu
- Ghi chú quy cách chung trong quá trình thiết kế và thi công
- Mặt bằng móng, chi tiết móng
- Mặt bằng định vị cột, chi tiết kết cấu cột
- Mặt bằng định vị dầm, chi tiết dầm tầng
- Mặt bằng kết cấu sàn tầng
- Mặt bằng định vị lanh tô, chi tiết kế cấu lanh tô
- Thống kê cốt thép
2.3 Phần điện
- Hồ sơ thiết kế chiếu sáng
- Hồ sơ thiết kế ổ cắm
- Hồ sơ thiết kế internet( Nếu có)
- Hồ sơ thiết kế Truyền hình cáp( Nếu có)
- Hồ sơ thiết kế điện thoại( Nếu có)
- Sơ đồ điện thông minh(Miễn phí - Nếu có)
- Thống kê vật tư
2.4 Phần nước
- Hồ sơ thiết kế cấp nước
- Hồ sơ thiết kế thoát nước
- Thống kê vật tư
Nhiều gia chủ trước khi xây nhà thường vào mạng tìm kiếm mẫu phù hợp với công năng và thẩm mĩ cá nhân của mình. nếu phù hợp mới gọi điện đến đơn vị tư vấn. Xin thưa với quý vị, như vậy là quý vị đã tự đánh mất quyền được tư vấn, và đưa kiến trúc sư vào khuôn mẫu.
Tham khảo thêm: Lưu ý khi xây nhà vệ sinh
Hãy gọi điện để được tư vấn (0988030680) Angcovat là đơn vị có kinh nghiệm trong việc sáng tạo những mẫu nhà đẹp nhất
Gửi yêu cầu tư vấn
Khách hàng vui lòng gọi điện vào hotline, Gửi yêu cầu tư vấn, Comment yêu cầu tư vấn dưới mỗi bài viết. Chúng tôi sẽ xử lý và trả lời yêu cầu tư vấn khách hàng trong 8h làm việc.
CÔNG TY CỔ PHẦN KIẾN TRÚC VÀ ĐẦU TƯ XÂY DỰNG ANG
Trụ sở: 211 - Khương Trung - Thanh Xuân - Hà Nội
Văn phòng: Số 137 Nguyễn Xiển - Thanh Xuân - Hà Nội.
Chi nhánh HCM: KDC Thới An, phường Thới An ,quận 12, TPHCM.
Chi nhánh Đà Nẵng: 268-270 đường 30/4, Quận Hải Châu, TP Đà Nẵng.
Hotline: 0988030680 - Tel: 02466622256 - Email: angcovat.vn@gmail.com

Bình luận