Khám phá các mẫu thiết kế nhà 1 tầng 3 phòng ngủ đẹp khiến bạn đứng ngồi không yên TIN61186
Xây nhà 1 tầng 3 phòng ngủ đang là xu hướng được nhiều quan tâm, trong ngôi biệt thự 1 tầng 3 phòng ngủ, gia chủ thường bố trí nơi nghỉ ngơi cho bố mẹ, phòng dành cho con cái và phòng dự trữ cho người thân hoặc khách. Mẫu nhà 1 tầng 3 phòng ngủ có các phòng ngủ tách biệt với các phòng chức năng khác tạo cảm giác thoải mái và không gian riêng tư cần thiết.
Dưới đây, chúng tôi liệt kê 8 mẫu thiết kế nhà 1 tầng 3 phòng ngủ đẹp với phong cách đa dạng, đây là những mẫu biệt thự đẹp được nhiều người yêu thích nhất, chúng tôi hy vọng thông qua bài viết này, quý vị và các bạn có thể tích lũy thêm nhiều kinh nghiệm khi xây dựng nhà ở.
Khám phá bản thiết kế nhà cấp 4 có 3 phòng ngủ mái thái ở nông thôn BT12185
.jpg)
Thiết kế nhà 1 tầng 3 phòng ngủ đẹp 190m2 do anh Cường ở Phú Thọ làm chủ đầu tư
Bản thiết kế nhà cấp 4 có 3 phòng ngủ mái thái ở nông thôn đẹp tọa lạc trên ô đất 2000m2 do anh Cường ở Phú Thọ làm chủ đầu tư. Với mặt tiền 13m, chiều sâu 14.5m, mẫu thiết kế nhà 1 tầng 3 phòng ngủ mái thái đẹp trên đây có kinh phí đầu tư dự kiến là 1 tỷ VND.
Mẫu biệt thự đẹp BT12185 được thiết kế nổi bật với kết cấu mái thái đồ sộ đăng đối, dáng mái xuôi đa chiều màu vàng đỏ thu hút sự chú ý của người nhìn. Đặc biệt mẫu nhà cấp 4 3 phòng ngủ sở hữu tone ngoại thất màu vàng kem ấm áp, mang đến cảm giác gần gũi đối với người sử dụng. Tổng thể khối kiến trúc của mẫu thiết kế nhà cấp 4 có 3 phòng ngủ đảm bảo sự hoàn thiện kĩ thuật cao, kiến trúc độc đáo thể hiện cá tính riêng biệt của gia chủ.
.jpg)
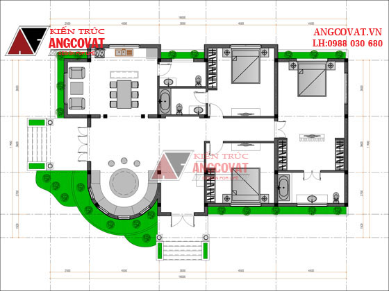
Mặt bằng mẫu thiết kế nhà 1 tầng 3 phòng ngủ đẹp kích thước 13x14.5m
Mẫu thiết kế nhà cấp 4 đẹp 3 phòng ngủ của gia đình anh Cường có tổng diện tích xây dựng là 190m2. Phân tích mặt bằng bản thiết kế nhà cấp 4 có 3 phòng ngủ ở Phú Thọ, có thể thấy ngôi nhà được bố trí công năng gồm 1 phòng khách, 1 phòng bếp ăn, 3 phòng ngủ, 2 phòng vệ sinh, 1 phòng thờ + thư viện.
Phòng khách của mẫu nhà 1 tầng 3 phòng ngủ sở hữu diện tích 35m2 được bố trí bộ bàn ghế kích thước lớn ở giữa phòng, kệ tủ tivi được đặt áp tường trang trí và hướng ra trước nhà. Không gian phòng khách được kết nối với phòng thờ + phòng thư viện ở bên trong. Trong đó, khu phòng thờ và thư viện được thiết kế tích hợp với không gian thoáng đãng, bộ bàn thờ lớn được đặt hợp với hướng tuổi của gia chủ. Kệ sách và bàn đọc sách được bố trí giữa phòng. Nhằm đáp ứng yêu cầu của chủ đầu tư, tại phòng thờ + thư viên, chúng tôi đã bố trí cửa phụ dẫn lối ra ngoài để thuận lợi cho quá trình di chuyển.
Bên cạnh phòng khách của nhà cấp 4 3 phòng ngủ là khu phòng bếp ăn, tại đây chúng tôi đã bố trí dãy bàn bếp dài áp sát tường phục vụ việc nấu nướng hằng ngày, bộ bàn ăn được đặt giữa phòng với 6 ghế ăn đáp ứng nhu cầu sử dụng của các thành viên trong gia đình. Cửa phụ tại phòng bếp ăn vừa giúp thoát mùi, vừa giúp người nội trợ dễ dàng di chuyển, nấu nướng hoặc đi chợ.
Tiếp nhận yêu cầu tư vấn thiết kế của gia đình anh Cường, chúng tôi thiết kế 3 phòng ngủ dành cho bố mẹ, ông bà và 1 phòng ngủ dành cho con cái trong gia đình. Trong đó, phòng ngủ 1 có vệ sinh khép kín dành cho vợ chồng anh Cường. Hai phòng ngủ còn lại có diện tích nhỏ hơn, được bố trí đối diện nhau, ở giữa 2 phòng ngủ 2 và phòng ngủ 3 là phòng vệ sinh chung diện tích rộng rãi. Trong các phòng ngủ, chúng tôi đã bố trí giường, tủ quần áo, bàn làm việc đáp ứng nhu cầu sử dụng của từng người.
Mẫu thiết kế nhà 1 tầng 3 phòng ngủ phong cách châu Âu 200m2 BT18155

Mẫu thiết kế nhà 1 tầng 3 phòng ngủ trên ô đất 900m2 BT18155
BT18155 là mẫu biệt thự 1 tầng phong cách châu Âu 200m2 sở hữu kiến trúc đẹp và độc đáo. Với kinh phí đầu tư dự kiến 1 tỷ VND, mẫu biệt thự 1 tầng 3 phòng ngủ BT18155 có mặt tiền 10m, sâu 20m và được xây dựng trên ô đất 30x30 = 900m2.
Nổi bật với kết cấu mái thái màu nâu sẫm bề thế, tổng thể mái thái có diện tích rộng, độ dốc cao nên mẫu nhà 1 tầng 3 phòng ngủ nhanh chóng tạo ấn tượng đối với người nhìn. Tổng thể mẫu biệt thự đẹp được thiết kế với các khối kiến trúc vuông vắn và khối hình đa giác tròn mang đến không gian sống sang trọng, mềm mại điển hình của kiến trúc phong cách châu Âu.

Mặt bằng mẫu nhà 1 tầng 3 phòng ngủ mặt tiền 10m, sâu 20m
Về mặt bằng, mẫu nhà 1 tầng 3 phòng ngủ phong cách châu Âu được bố trí 1 phòng khách, 1 phòng bếp ăn, 3 phòng ngủ và 3 phòng vệ sinh riêng. Ngôi biệt thự nhà vườn 1 tầng có 1 sảnh chính và 1 sảnh phụ dẫn lối vào nhà.
Từ sảnh chính đi vào, quý vị sẽ bắt gặp không gian phòng khách sang trọng ở khu bên phải ngôi nhà. Phòng khách được thiết kế cách điệu theo khối kiến trúc lớn hình vòm cung, nơi đây được bố trí bộ sofa dài dáng vòm cung phù hợp với kiến trúc phòng khách. Hệ thống cửa kính ở phòng khách tạo view đẹp hướng ra khuôn viên xanh mát.
Đối diện với phòng khách là khu phòng bếp ấm cúng. Phòng bếp được kiến trúc sư bố trí dãy bàn bếp dài áp sát tường, bộ bàn ăn hình chữ nhật 6 ghế được bố trí giữa phòng nhằm đảm bảo sự cân đối trong không gian. Ngoài ra, chúng tôi cũng bố trí bộ bàn sofa nhỏ có 2 ghế tại khu cửa sổ phòng khách để thành viên trong gia đình thường thức trà chiều. Phòng bếp có 1 phòng vệ sinh chung đáp ứng nhu cầu sử dụng khi gia đình có khách đến chơi.
Phần mặt bằng bên trong của mẫu nhà 1 tầng 3 phòng ngủ, chúng tôi bố trí 3 phòng ngủ với diện tích khác nhau dành cho các thành viên trong gia đình. Hai phòng ngủ đối diện nhau có diện tích khoảng 20m2 được bố trí dành cho ông bà và con cái, trong đó phòng ngủ dành cho ông bà có phòng vệ sinh riêng để thuận tiện cho quá trình sử dụng của người cao tuổi.
Phòng ngủ còn lại được thiết kế dành cho bố mẹ với diện tích rộng, đây là phòng ngủ Vip được thiết kế tích hợp bao gồm khu phòng ngủ, phòng làm việc, phòng thay đồ, phòng tắm và phòng vệ sinh riêng. Không gian phòng ngủ của bố mẹ được thiết kế đảm bảo sự riêng tư, yêu tĩnh để gia chủ chuyên tâm làm việc.
Mẫu thiết kế nhà 1 tầng 3 phòng ngủ phong cách tân cổ điển của gia đình bà Hân ở Hòa Bình.
Phối cảnh mẫu biệt thự 1 tầng 3 phòng ngủ 130m2 tân cổ điển ở Hòa Bình
Ngắm phối cảnh mẫu thiết kế biệt thự 1 tầng 3 phòng ngủ 130m2 ở Hòa Bình, có thể thấy ngôi nhà nổi bật với kết cấu mái thái đa chiều đăng đối, hệ mái bề thế giúp bảo vệ không gian nội thất. Các khối tường của mẫu biệt thự 1 tầng 3 phòng ngủ được thiết kế khỏe khoắn, tường màu vàng nhạt tạo không gian sang trọng, trong khi đó hệ thống trụ tròn được bố trí trước nhà mang đến cảm giác về một ngôi biệt thự sang trọng, đẳng cấp.
Mẫu thiết kế nhà 130m2 1 tầng 3 phòng ngủ được thiết kế theo phong cách tân cổ điển với mặt tiền 14m, sâu 10m được xây dựng trên ô đất 2000m2 với kinh phí đầu tư từ 800 - 1 tỷ VND.
.jpg)
Mặt bằng mẫu nhà 1 tầng 3 phòng ngủ kích thước 14x10m
Mẫu biệt thự 1 tầng 3 phòng ngủ tân cổ điển của gia đình bà Hân ở Hòa Bình sở hữu 1 phòng khách, 1 phòng sinh hoạt chung, 1 phòng bếp ăn, 3 phòng ngủ và 2 phòng vệ sinh.
Từ tiền sảnh 7.5m2 đi vào là không gian phòng khách 22.5m2, nơi đây được bố trí bô sofa kích thước lớn, kệ tivi để đối diện, không gian phòng khách sang trọng là nơi đón tiếp bạn bè người thân trong gia đình. Bên cạnh phòng khách là phòng sinh hoạt chung 14m2 được thiết kế theo dáng vòm cung, tại đây kiến trúc sư đã bố trí hệ cửa kính sang trọng để người nhìn dễ dàng ngắm nhìn cảnh sắc bên ngoài.
Bên trong phòng khách là phòng bếp ăn 15m2 có dãy bàn bếp nấu ăn áp sát tường, bộ bàn ăn giữa phòng và khu phòng tắm, phòng vệ sinh chung. 3 phòng ngủ được thiết kế linh động phù hợp với kiến trúc không gian tổng thể.Trong đó, Phòng ngủ 2 ( bên cạnh phòng sinh hoạt chung ) được thiết kế dành cho bố mẹ, được tích hợp phòng vệ sinh riêng với tổng diện tích phòng ngủ là 15m2. Hai phòng ngủ còn lại dành cho các con với diện tích 14m2 và 12m2.
Trong các phòng chức năng, kiến trúc sư đã bố trí hệ cửa sổ lớn giúp mở rộng không gian, tạo sự thoáng mát cho nội thất để các thành viên trong gia đình luôn cảm thấy thư giãn, thoải mái.
Thiết kế nhà cấp 4 3phòng ngủ sang trọng ở Thanh Hóa BT23125

Phối cảnh mẫu nhà cấp 4 3 phòng ngủ 135m2 của gia đình ông Chiến ở Thanh Hóa
Mẫu nhà cấp 4 sang trọng 3 phòng ngủ ở Thanh Hóa được thiết kế dành cho gia đình ông Chiến. Đây là mẫu biệt thự mái thái đẹp, kiến trúc khỏe khoắn, vững chãi với mặt tiền 13m, chiều sâu 11m được xây dựng trên ô đất 16x30m = 480m2 với kinh phí đầu tư dự kiến 800 - 900 triệu VND.

Mặt bằng nội thất mẫu nhà cấp 4 3 phòng ngủ sang trọng 13x11m
Tìm hiểu mặt bằng nội thất của mẫu nhà cấp 4 3 phòng ngủ sang trọng ở Thanh Hóa, có thể thấy ngôi nhà sở hữu 1 phòng khách, 1 phòng bếp ăn, 1 phòng thờ, 3 phòng ngủ và 2 phòng vệ sinh chung được bố trí cạnh các phòng ngủ đê thuận tiện trong quá trình sử dụng.
Phòng khách của bản vẽ nhà 1 tầng 3 phòng ngủ 135m2 ở Thanh Hóa có diện tích 20m2 bao gồm bộ bàn ghế lớn + kệ để tivi sang trọng. Phía trong phòng khách là phòng thờ được thiết kế trang trọng để con cháu trong gia đình thể hiện lòng kính hiếu với ông bà tổ tiên. Bộ bàn thờ được đặt cùng với hướng tuổi của gia chủ.
Phòng bếp ăn có diện tích 180m2 bao gồm dãy bàn bếp nấu ăn + bàn ăn sang trọng đáp ứng nhu cầu ăn uống của các thành viên trong gia đình. Hệ thống các phòng ngủ của mẫu thiết kế nhà 1 tầng 3 phòng ngủ được bố trí gồm 1 phòng cho người già 14m2, 1 phòng ngủ của bố mẹ 18m2 và 1 phòng ngủ của con 14m2. Không gian các phòng thông thoáng và mát mẻ nhờ hệ cửa sổ đẹp đón gió và ánh sáng tự nhiên vào nhà.
Mẫu nhà 1 tầng 3 phòng ngủ giá rẻ nhỏ xinh ở Hải Phòng BT11885
Phối cảnh mẫu thiết kế nhà 1 tầng 3 phòng ngủ của gia đình chị Hà ở Hải Phòng
Mẫu nhà đẹp 1 tầng giá rẻ nhỏ xinh 3 phòng ngủ ở Hải Phòng có mặt tiền 10m, sâu 15m được xây dựng trên ô đất 500m2 với kinh phí đầu tư dự kiến 600 triệu đồng do chị Hà làm chủ đầu tư. Là một trong những mẫu nhà mái thái đẹp phù hợp với nhu cầu sử dụng thực tế của gia đình
.jpg)
Mặt bằng mẫu thiết kế nhà 1 tầng 3 phòng ngủ đẹp kích thước 10x15m
Mặt bằng của mẫu thiết kế nhà 1 tầng 3 phòng ngủ giá rẻ nhỏ xinh 150m2 bao gồm 1 phòng khách, 1 phòng bếp ăn, 3 phòng ngủ và 1 phòng vệ sinh chung. Từ tiền sảnh đi vào là không gian phòng khách sang trọng 35m2 có bộ bàn ghế lớn, kệ tivi hiện đại và khu bàn thờ trang trọng. Phía trong phòng khách là phòng bếp ăn được thiết kế theo dáng chữ U hiện đại. Khu phòng ăn có lối đi phụ dẫn lối ra ngoài để thuận tiện trong quá trình di chuyển và đi chợ.
3 phòng ngủ của bản vẽ nhà 1 tầng 3 phòng ngủ bao gồm phòng ngủ bố mẹ 25m2, 2 phòng ngủ còn lại có diện tích 20m2 bao gồm giường, tủ quần áo và bàn làm việc, đáp ứng nhu cầu sử dụng của các thành viên trong gia đình.
Mẫu thiết kế nhà cấp 4 3 phòng ngủ mái thái hiện đại 120m2 BT126115

Phối cảnh mẫu biệt thự 1 tầng 3 phòng ngủ của gia đình ông Tuyến ở Hải Phòng
Mẫu thiết kế nhà cấp 4 mái thái hiện đại 120m2 có mặt tiền 12m, sâu 10m được xây dựng trên ô đất 20x23m với kinh phí đầu tư dự kiến 600 triệu do ông Tuyến ở Hải Phòng làm chủ đầu tư.

Mặt bằng nội thất mẫu nhà cấp 4 3 phòng ngủ kích thước 12x10m
Mặt bằng mẫu nhà cấp 4 3 phòng ngủ 120m2 mái thái hiện đại ở Hải Phòng có 1 phòng khách, 1 phòng bếp ăn, 1 phòng thờ, 3 phòng ngủ và 2 phòng vệ sinh chung được bố trí ở 2 đầu sảnh ngang tạo sự thuận tiện trong quá trình sử dụng.
Phòng khách của mẫu nhà 1 tầng 3 phòng ngủ có diện tích 20m2 bao gồm bộ bàn ghế lớn và kệ tivi sang trọng. Bên phải phòng khách là khu phòng bếp ăn 16m2 có bộ bàn ghế lớn và dãy bàn bếp nấu ăn hiện đại. Phía sâu trong phòng khách là khu phòng thờ 10m2 được bố trí bộ bàn thờ lớn để con cháu thể hiện lòng kính hiếu với ông bà tổ tiên.
Được thiết kế theo đúng yêu cầu của chủ đầu tư, nên chúng tôi bố trí phòng ngủ của bộ mẹ 14m2 nằm sâu trong ngôi nhà, phòng ngủ con có diện tích 14m2 và 16m2 được bố trí giường, tủ quần áo và bàn làm việc sang trọng phục vụ nhu cầu làm việc kết hợp nghỉ ngơi cho các thành viên trong gia đình.
Thiết kế nhà cấp 4 3 phòng ngủ 160m2 mái thái hiện đại BT12125
(1).jpg)
Phối cảnh mẫu nhà cấp 4 3 phòng ngủ 160m2 của ông Việt, Bà Tư ở Nghệ An
Mẫu thiết kế nhà vườn cấp 4 đẹp diện tích 160m2 có kích thước 9.5x17.5m, được xây dựng trên ô đất 270m2 với kinh phí đầu tư dự kiến 900 - 1 tỷ VND do ông Việt, bà Tư ở Nghệ An làm chủ đầu tư.
(1).jpg)
Bản vẽ thiết kế nhà 1 tầng 3 phòng ngủ diện tích 160m2 mặt tiền 9.5m
Ngắm bản vẽ thiết kế nhà 1 tầng 3 phòng ngủ ở Nghệ An, có thể thấy ngôi nhà có 1 phòng khách 25m2, phòng bếp ăn 12m2, 1 phòng thờ 12m2, và 3 phòng ngủ dành cho các thành viên trong gia đình.
3 phòng ngủ của mẫu nhà biệt thự đẹp được thiết kế dành cho 3 thế hệ, trong đó 1 phòng ngủ dành cho vợ chồng ông Việt, bà Tư, 1 phòng ngủ dành cho con trai và con dâu, phòng ngủ còn lại dành cho cháu gái nhỏ. Trong các phòng, chúng tôi đã bố trí giường, tủ quần áo, bàn làm việc đầy đủ, hệ thống cửa sổ giúp lấy sáng và tạo sự thoáng đãng cho không gian.
Thiết kế nhà cấp 4 3 phòng ngủ diện tích 120m2 mái ngói đẹp ở TP. Điện Biên BT12395
.jpg)
Phối cảnh mẫu thiết kế nhà cấp 4 3 phòng ngủ do ông Đảng ở Tp. Điện Biên làm chủ đầu tư.
Mẫu thiết kế nhà cấp 4 3 phòng ngủ của gia đình ông Đảng ở TP. Điện Biên có mặt tiền 7m, sâu 17m được xây dựng trên ô đất 160m2 với kinh phí đầu tư dự kiến 600 triệu đồng. Với tổng diện tích xây dựng nhà ở là 120m2, mẫu nhà 1 tầng 3 phòng ngủ của gia đình ông Đảng nổi bật với phong cách nhà đồng quê. Màu ghi trung tính làm gam ngoại thất chủ đạo góp phần tạo nên không gian sống đơn giản và sang trọng. Kết cấu mái ngói đỏ là điển trưng cho phong cách kiến trúc Việt tạo sự gần gũi, thân quen cho người sử dụng.
.jpg)
Mặt bằng nội thất mẫu nhà 1 tầng 3 phòng ngủ 7x17m
Soi mặt bằng nội thất của mẫu nhà 1 tầng 3 phòng ngủ 120m2 ở TP. Điện Biên, có thể thấy ngôi nhà được thiết kế theo kiểu nhà ống với măt bằng được phân chia làm 2 phần đều nhau. Trong đó khu phòng khách, phòng bếp ăn và phòng vệ sinh chung được thiết kế cùng 1 dãy phần bên trái ngôi nhà. Ba phòng ngủ còn lại được thiết kế san sát nhau ở dãy phần bên phải.
Trong các phòng chức năng, chúng tôi bố trí đầy đủ đồ nội thất tiện nghi sang trọng đáp ứng nhu cầu sử dụng của các thành viên trong gia đình.
Các mẫu thiết kế nhà 1 tầng 3 phòng ngủ đẹp không chỉ được thiết kế đảm bảo công năng, sự hoàn thiện kĩ thuật mà còn thể hiện tính thẩm mỹ cao, mang đến không gian sống sang trọng, thoải mái cho các thành viên trong gia đình. Bộ sưu tập 8 mẫu nhà biệt thự 1 tầng 3 phòng ngủ trên đây liệu có làm quý vị hài lòng ? Nếu quý vị yêu thích bất kì mẫu biệt thự đẹp nào, hãy liên hệ với chúng tôi để được tư vấn chi tiết hơn.
Không chỉ các mẫu nhà 1 tầng 3 phòng ngủ đẹp này, chúng tôi còn thực hiện rất nhiều những thiết kế nhà hình chữ u đẹp được lòng khách hàng, bạn quan tâm có thể thường xuyên theo dõi và cập nhật các thiết kế nhà mới nhất tại website của công ty.
Mọi thông tin chi tiết mời liên hệ: 0988 030 680
Gửi yêu cầu tư vấn
Khách hàng vui lòng gọi điện vào hotline, Gửi yêu cầu tư vấn, Comment yêu cầu tư vấn dưới mỗi bài viết. Chúng tôi sẽ xử lý và trả lời yêu cầu tư vấn khách hàng trong 8h làm việc.
CÔNG TY CỔ PHẦN KIẾN TRÚC VÀ ĐẦU TƯ XÂY DỰNG ANG
Trụ sở: 211 - Khương Trung - Thanh Xuân - Hà Nội
Văn phòng: Số 137 Nguyễn Xiển - Thanh Xuân - Hà Nội.
Chi nhánh HCM: KDC Thới An, phường Thới An ,quận 12, TPHCM.
Chi nhánh Đà Nẵng: 268-270 đường 30/4, Quận Hải Châu, TP Đà Nẵng.
Hotline: 0988030680 - Tel: 02466622256 - Email: angcovat.vn@gmail.com
(1).jpg)
.jpg)

Bình luận