Các mẫu nhà 2 tầng tân cổ điển được nhiều người yêu thích nhất 11086
Kiến trúc tân cổ điển là một phong cách kiến trúc được tạo ra bởi phong trào tân cổ điển bắt đầu vào giữa thế kỉ 18. Phong cách tân cổ điển chính là sự kết hợp pha trộn giữa phong cách cổ điển và phong cách hiện đại. Hiện nay trào lưu thiết kế nhà ở hay biệt thự theo phong cách tân cổ điển đang phát triển mạnh mẽ tại Việt Nam.
Để hiểu rõ hơn về kiến trúc tân cổ điển đẹp này, chúng tôi trân trọng giới thiệu đến quý vị 03 mẫu nhà 2 tầng tân cổ điển được nhiều người yêu thích nhất.
Chiêm ngưỡng phối cảnh mẫu nhà 2 tầng tân cổ điển ở Hưng Yên BT107016
.jpg)
Phối cảnh mẫu nhà 2 tầng tân cổ điển 1 mặt tiền BT107016
Mẫu thiết kế biệt thự nhà 2 tầng tân cổ điển đầu tiên tọa lạc tại ô đất 9x20m=180m2 ở Hưng Yên do gia đình chị Hà làm chủ đầu tư. Mẫu nhà 2 tầng 1 mặt tiền phong cách tân cổ điển đẹp khiến nhiều người mê mẩn bởi kích thước chuẩn, khu mặt tiền 9m, chiều sâu 10.5m, tổng diện tích sàn là 100m2 được dự kiến xây dựng vào đầu năm 2016.
Với kinh phí đầu tư dự kiến là 900 triệu đồng, mẫu thiết kế nhà tân cổ điển 2 tầng này nổi bật với tone ngoại thất màu trắng kem cao cấp. Trắng kem là gam màu tinh tế tạo cảm giác thân thiện, an toàn và không gian rộng rãi cho ngôi nhà. Sơn ngoại thất cao cấp màu trắng được bao phủ trên toàn bộ các mảng tường ở tầng 2 và các khối cột, trụ ở tầng 1, riêng mặt tiền chìm ở tầng 1, kiến trúc sư sơn màu vàng kem ấm áp tạo điểm nhấn kiến trúc đẹp.
Được thiết kế theo phong cách tân cổ điển, nên lan can ban công của mẫu biệt thự tân cổ điển được sơn màu đen với hoa văn uốn lượn tinh tế. Các chi tiết phào chỉ trang trí tạo điểm nhấn tại các khối trụ mang lại cảm giác mềm mại cho khối kiến trúc.
Kết cấu mái ngói nâu đỏ được xây tường thu hồi và lập ngói cao cấp nên đảm bảo công năng bảo vệ ngôi nha 2 tang tan co dien tránh khỏi ảnh hưởng xấu của thời tiết, nắng, mưa, gió, bão...Bên cạnh tính công năng được đảm bảo, hệ mái ngói đăng đối, độ dốc cao còn tạo vẻ bề thế và thể hiện tính thẩm mỹ cao và đồng nhất trong phong cách thể hiện.
.jpg)
Mặt bằng tầng 1 nhà 2 tầng tân cổ điển 9x10.5m
Mẫu biệt thự cổ điển đẹp cách tân 2 tầng của gia đình chị Hà tại Hưng Yên tọa lạc trên ô đất rộng 9m, dài 20m, tổng diện tích khu đất là 180m2. Ngoài 100m2 diện tích đất xây dựng nhà ở thì số diện tích còn lại được thiết kế làm sân trước nhà để đỗ ô tô hoặc làm nơi vui chơi cho trẻ nhỏ.
Tầng 1 của mẫu nhà 2 tầng tân cổ điển 1 mặt tiền đẹp có 1 phòng khách, 1 phòng bếp ăn, 1 phòng làm việc, 1 phòng vệ sinh chung và 1 phòng giặt đồ.
Trong đó, phòng khách của ngôi nhà đẹp tân cổ điển BT107016 có diện tích 19m2 được bố trí bộ bàn ghế kích thước lớn và kệ để tivi sang trọng. Bên trong phòng khách là phòng bếp ăn diện tích 24m2 bao gồm dãy bàn bếp nấu ăn hình chữ U và bộ bàn ăn sang trọng đặt sát tường.
Phòng làm việc dành cho gia chủ được thiết kế thoáng đãng với diện tích 15m2, không gian yên tĩnh đảm bảo quá trình làm việc của gia chủ. Bên cạnh sảnh cầu thang là phòng khu phòng vệ sinh và phòng giặt giũ diện tích 6.4m2, khu phòng giặt có cửa phụ thông ra ngoài để phục vụ quá trình di chuyển, phơi đồ.
.jpg)
Mặt bằng tầng 2 - nhà 2 tầng tân cổ điển diện tích 100m2 trên ô đất 180m2
Tầng 2 của mẫu nhà 2 tầng tân cổ điển diện tích 100m2, mặt tiền 9m, sâu 10.5m có 3 phòng ngủ, 1 phòng vệ sinh chung, 1 sân chơi rộng rãi. Trong đó phòng ngủ 1 có diện tích 13m2, phòng ngủ 2 diện tích 13.6m2 và phòng ngủ 3 diện tích 19m2. Phòng ngủ diện tích lớn nhất có ban công hướng ra trước nhà được thiết kế dành cho vợ chồng gia chủ, các phòng ngủ còn lại dành cho con cái trong gia đình.
Khu phòng vệ sinh chung 6.4m2 được thiết kế đối diện sảnh cầu thang, thể hiện sự tiện dụng cho các thành viên trong gia đình. Khu sân chơi 19m2 nằm bên cạnh phòng ngủ lớn có view đẹp hướng ra trước nhà, tại đây chúng tôi bố trí bộ bàn trà nhỏ xinh và nhiều chậu cây cảnh để các thành viên trong gia đình vui chơi, ngắm cảnh.
Khám phá mẫu thiết kế nhà 2 tầng tân cổ điển đẹp diện tích 300m2 BT15115

Phối cảnh nhà 2 tầng tân cổ điển sang trọng ở Khoái Châu - Hưng Yên BT15115
Hình ảnh mẫu nhà 2 tầng tân cổ điển sang trọng và hoành tráng trước mắt bạn chính là mẫu thiết kế nhà biệt thự 300m2 2 tầng do ông Thanh ở Khoái Châu - Hưng Yên làm chủ đầu tư. Đây là một trong những phương án thiết kế nhà 2 tầng tân cổ điển bề thế và sang trọng như một dinh thự thời xưa. Mẫu nhà đẹp tân cổ điển 2 tầng của gia đình ông Thanh có mặt tiền 16m, sâu 16m, tổng diện tích xây dựng là 300m2 trên ô đất rộng 1500m2.
Mẫu biệt thự tân cổ điển 2 tầng ở Khoái Châu - Hưng Yên do kiến trúc sư Vương Văn Quân và Lê Văn Việt thiết kế với kinh phí đầu tư dự kiến 3.5 tỷ VND. Được bắt tay vào khởi công xây dựng vào cuối năm 2015, mẫu nhà đẹp tân cổ điển 300m2 nổi bật với khối kiến trúc bề thế và khỏe khoắn, các chi tiết cột trụ được kẻ phào chỉ đơn giản nhưng vẫn làm nổi bật lên nét mềm mại và tinh tế.
Đặc biệt, khu mặt tiền được thiết kế với hình khối dạng vòm cung mềm mại, độ cao của mái hiên tiền sảnh lớn ngang bằng với chiều cao 2 tầng nhà. Các bậc tam cấp khu tiền sảnh được thiết kế mở rộng dần mang đến cảm giác vô cùng lịch lãm cho người sử dụng.
Lựa chọn màu sắc ngoại thất cho mẫu thiết kế nha 2 tang tan co dien, kiến trúc sư sử dụng màu trắng để sơn lên các khối trụ, các chi tiết trang trí và cạnh nhà, trong khi đó sơn màu vàng được bao phủ trên các mảng tường chìm mang đến không gian ấm áp, sang trọng. Thiết kế ngoại thất cho mẫu nhà đẹp tân cổ điển, chúng tôi khuyên chủ đầu tư nên lựa chọn những dòng sơn ngoại thất chất lượng cao, có khả năng đề kháng với các điều kiện xấu của thời tiết, khí hậu để đảm bảo sự trường tồn cho ngôi nhà.
Hệ thống cửa nhựa lõi thép cao cấp không chỉ có tác dụng lấy sáng, tạo sự thoáng đãng cho nội thất mà còn thể hiện nét kiến trúc hiện đại xen lẫn với không gian nội thất tân cổ điển.

Mặt bằng tầng 1 - nhà 2 tầng tân cổ điển kích thước 16x16m
Tầng 1 của mẫu nhà 2 tầng tân cổ điển 300m2 ở Khoái Châu - Hưng Yên có 1 phòng khách, 2 phòng ngủ có vệ sinh khép kín, 1 phòng ngủ của người giúp việc và 1 phòng vệ sinh chung. Ngôi biệt thự có 3 sảnh lớn ra vào bao gồm 1 khu tiền sảnh chính, 1 sảnh phụ đi ra sau nhà và 1 sảnh đi ra khu bể bơi gia đình.
Khu phòng khách của mẫu nhà đẹp tân cổ điển có diện tích 84m2 bao gồm 2 bộ bàn ghế tiếp khách ở 2 bên, khu giữa phòng tại lối đi được đặt 1 bộ đàn piano lớn tạo không gian sang trọng và quý phái.
Tại tầng 1, chúng tôi bố trí 2 phòng ngủ có vệ sinh khép kín, trong đó phòng ngủ 1 có diện tích 34m2, phòng ngủ 2 có diện tích 23m2 được bố trí giường ngủ, tủ quần áo, bà làm việc riêng. Đáp ứng nhu cầu của chủ đầu tư, chúng tôi bố trí 1 phòng ngủ dành cho người giúp việc ở gần phòng khách để thuận tiện cho quá trình di chuyển, làm việc.

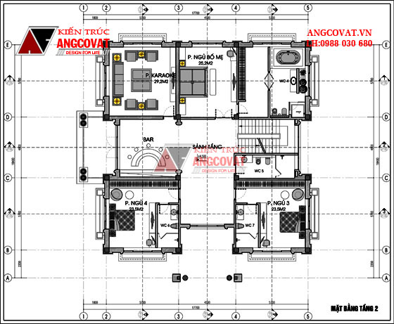
Mặt bằng tầng 2 - nhà 2 tầng tân cổ điển diện tích 300m2
Tầng 2 của mẫu nhà 2 tầng tân cổ điển diện tích 300m2 ở Khoái Châu - Hưng Yên có 3 phòng ngủ có vệ sinh khép kín, 1 phòng karaoke, 1 phòng vệ sinh chung và 1 khu bar tại sảnh cầu thang. Khu bar cách điệu có diện tích rộng, không gian thoáng đãng nhờ hệ ban công lớn hướng ra bên ngoài.
Phòng ngủ 3 và phòng ngủ 4 đều có diện tích 23m2 có giường, tủ quần áo, bàn làm việc và phòng vệ sinh khép kín. Riêng với phòng ngủ của bố mẹ có diện tích khoảng 50m2 bao gồm không gian ngủ nghỉ 25m2, phòng thay đồ, phòng tắm, phòng vệ sinh chung và bàn làm việc.
Tầng 2 có 1 phòng karaoke được thiết kế với hệ thống cách âm tốt, giàn âm thanh hiện đại sẽ giúp các thành viên trong gia đình thư giãn, giải trí sau những giờ làm việc mệt mỏi.
Tìm hiểu thiết kế mẫu nhà 2 tầng tân cổ điển diện tích 70m2 tại Thanh Hóa BT112125
(1).jpg)
Phối cảnh nhà 2 tầng tân cổ điển ở Thanh Hóa BT112125
Hình ảnh ngôi nhà 2 tầng tân cổ điển ở Thanh Hóa BT112125 mà quý vị đang thấy chính là mẫu thiết kế nhà 2 tầng 70m2 tân cổ điển hình chữ L đẹp do ông Tư làm chủ đầu tư. Ngôi nhà đẹp tân cổ điển này có mặt tiền 7m, sâu 11.5m tọa lạc trên ô đất 125m2. Với kinh phí đầu tư dự kiến từ 700 - 800 triệu đồng, quý vị có thể dễ dàng sở hữu một mẫu biệt thự tân cổ điển đẹp 2 tầng, mỗi sàn có diện tích 70m2.
Mẫu nhà 2 tầng tân cổ điển nổi bật với hệ mái thái đồ sộ, hệ mái được đổ bê tông sau đó dán ngói thái màu nâu sẫm sang trọng. Kết cấu mái thái của ngôi nha 2 tang tan co dien 70m2 vừa đảm bảo công năng bảo vệ ngôi nhà tránh khỏi các hiện tượng xấu của thời tiết vừa thể hiện được tính thẩm mỹ cao, giúp giải thoát các tà khí, hung khí tích tụ trên nóc nhà.
Khác với tone ngoại thất màu trắng của mẫu thiết kế nhà 2 tầng 4 phòng ngủ ở Thái Bình, mẫu biệt thự tân cổ điển 2 tầng diện tích 70m2 ở Thanh Hóa mà quý vị đang xem lại sở hữu tone ngoại thất màu xanh dương mang đến cảm giác bình yên và khỏe khoắn. Bao quanh các khối tường màu xanh là những chi tiết phào chỉ màu trắng được thiết kế tinh xảo, hệ cửa gỗ màu trắng sang trọng cũng có tác dụng tạo sự thống nhất trong phong cách kiến trúc tân cổ điển, để tổng quan kiến trúc mẫu thiết kế nhà tân cổ điển đẹp càng thêm đẹp.
.jpg)
Mặt bằng tầng 1 - nhà 2 tầng tân cổ điển kích thước 7x11.5m
Mẫu thiết kế nhà 2 tầng tân cổ điển có kích thước 7x11.5m tọa lạc trên ô đất 125m2. Ngôi nhà được thiết kế theo hình chữ L đẹp, khoảng diện tích thừa được tận dụng làm khu sân trước nhà.
Tầng 1 của mẫu nhà đẹp tân cổ điển 2 tầng có 1 phòng khách, 1 phòng bếp ăn, 1 phòng ngủ và 1 phòng vệ sinh chung. Từ tiền sảnh đi vào là khu phòng khách sang trọng 20m2 bao gồm bộ bàn ghế lớn giữa nhà, khu kệ để tivi sang trọng.
Bên cạnh phòng khách là phòng ngủ 1 diện tích nhỏ xinh có 1 bộ giường, tủ quần áo và bàn làm việc. Đây là phòng ngủ dành cho người cao tuổi trong gia đình để thuận tiện cho quá trình di chuyển phù hợp với sức khỏe người già.
Phòng bếp ăn rộng rãi của nhà 2 tầng tân cổ điển 70m2 bao gồm khu bếp nấu ăn nằm sát tường, khu bàn ăn được đặt giữa phòng. Không gian phòng bếp đề cao sự thoáng đãng, giúp thoát mùi và có cửa phụ ra ngoài để đi chợ và di chuyển.
.jpg)
Mặt bằng tầng 2 - nhà 2 tầng tân cổ điển diện tích 70m2
Tầng 2 của mẫu biệt thự đẹp 2 tầng tân cổ điển diện tích 70m2 tại Thanh Hóa có 2 phòng ngủ, bao gồm phòng ngủ lớn dành cho bố mẹ và phòng ngủ nhỏ dành cho con, trong các phòng ngủ đều có ban công rộng hướng ra trước nhà. Khu phòng thờ được thiết kế bên cạnh sảnh cầu thang với hướng bàn thờ được điều chỉnh phù hợp với hướng tuổi của gia chủ.
Phía không gian trong cùng bên cạnh sảnh cầu thang, chúng tôi thiết kế khu phòng vệ sinh chung để vừa thuận tiện cho quá trình sử dụng vừa tận dụng được không gian diện tích mặt bằng.
Trên đây là những đặc trưng cơ bản của 3 mẫu thiết kế nhà 2 tầng tân cổ điển đẹp được nhiều khách hàng quan tâm nhất. Với màu sắc, diện tích, công năng và diện tích khác nhau, mỗi ngôi nhà 2 tầng tân cổ điển đều được tính toán theo mức chi phí đầu tư dự kiến hợp lý nhất, phù hợp với điều kiện kinh tế và nhu cầu của từng chủ đầu tư. Nếu quý vị có nhu cầu thiết kế một mẫu biệt thự tân cổ điển theo ô đất mà gia đình mình sở hữu, hãy liên hệ với chúng tôi để được tư vấn và báo giá thiết kế kiến trúc cụ thể.
Bên cạnh các mẫu biệt thự đẹp trên đây, quý vị có thể ghé thăm những mẫu xây nhà 2 tầng diện tích 90m2 đa phong cách để lựa chọn cho ngôi nhà tương lai của mình phong cách kiến trúc phù hợp nhất.
Liên hệ hotline: 0988 030 680
Gửi yêu cầu tư vấn
Khách hàng vui lòng gọi điện vào hotline, Gửi yêu cầu tư vấn, Comment yêu cầu tư vấn dưới mỗi bài viết. Chúng tôi sẽ xử lý và trả lời yêu cầu tư vấn khách hàng trong 8h làm việc.
CÔNG TY CỔ PHẦN KIẾN TRÚC VÀ ĐẦU TƯ XÂY DỰNG ANG
Trụ sở: 211 - Khương Trung - Thanh Xuân - Hà Nội
Văn phòng: Số 137 Nguyễn Xiển - Thanh Xuân - Hà Nội.
Chi nhánh HCM: KDC Thới An, phường Thới An ,quận 12, TPHCM.
Chi nhánh Đà Nẵng: 268-270 đường 30/4, Quận Hải Châu, TP Đà Nẵng.
Hotline: 0988030680 - Tel: 02466622256 - Email: angcovat.vn@gmail.com

Bình luận