Thiết kế nhà phố cổ điển 4 tầng mặt tiền 6m 4 phòng ngủ diện tích 90m2 tại Thái Nguyên NP13125
https://angcovat.vn/nha-pho/nha-pho-4-tang/338-thiet-ke-nha-pho-co-dien-4-tang-mat-tien-6m-4-phong-ngu-dien-tich-90m2-tai-thai-nguyen-np13125.html#sigProId155536ebc4
Mẫu biệt thự mới đẹp 4 tầng phong cách cổ điển 4 phòng ngủ được chúng tôi tạo ra để so sánh với phương án hiện đại trước đó theo yêu cầu của chị Hiền ở Thái Nguyên. Có thể nói mỗi phong cách lại có điểm nhấn cũng như vẻ đẹp riêng dành tặng cho gia chủ, nếu như phong cách hiện đại mang tới sự trẻ trung, cá tính thì phong cách cổ điển lại mang tới cảm giác hài hòa, đầm ấm, yên bình. Không để quý vị chờ lâu nữa ngay sau đây chúng ta cùng đi khám phá vẻ đẹp của mẫu thiết kế nhà phố cổ điển 4 tầng mặt tiền 6m thông qua 1 vài thông số kỹ thuật.
Tổng quan mẫu thiết kế nhà phố cổ điển 4 tầng 4 phòng ngủ mặt tiền 6m tại Thái Nguyên NP13125
|
NP13125 |
|
04 |
|
6m |
|
15m |
|
6x19m = 114m2 |
|
Phạm Thành Tư |
|
1,8-2 tỷ |
|
Bà Nguyễn Thị Thu Hiền - Phương Án 2 |
|
Số 1 - phố Văn Cao - đường Lương Ngọc Quyến - Đồng Quang - Thái Nguyên |
|
2015 |
|
- Tầng 1: 1Gara otô, 1 phòng ngủ giúp việc, 1 sân sau, 1 vệ sinh- Diện tích tầng 1: 90m2 |

Phối cảnh view 1 - Thiết kế nhà phố cổ điển 4 tầng mặt tiền 6m 4 phòng ngủ diện tích 90m2 NP13125
Mẫu thiết kế nhà phố cổ điển 4 tầng diện tích 90m2 mặt tiền 6m - Tổng quan ngoại thất
Mẫu nhà phố đẹp 4 tầng phong cách cổ điển này mang vẻ đẹp cũng như sự bề thế chẳng thua kém gì những mẫu biệt thự đẹp mà chúng tôi đã giới thiệu trước đó. Bạn có thể thấy khi nhìn vào phối cảnh mẫu nhà phố này cảm giác đầu tiên bạn cảm nhận được đó là sự gần gũi cũng như ấm áp từ chính tone màu chủ đạo của ngôi nhà. Khác với các mẫu thiết kế nhà phố hiện đại trước đó thường lấy gam màu trắng, ghi để làm điểm nhấn và gợi độ mở cho không gian nhà phố. Nhưng trong mẫu thiết kế này bạn có thể thấy chúng tôi đã thay gam màu đó bằng gam màu vàng sang trọng để làm tone màu chủ đạo.
Thiết kế nhà phố 4 tầng cổ điển 6x15m đẹp tại Thái Nguyên có tone màu bắt mắt
Sở dĩ chọn gam màu vàng là bởi ngôi nhà được thiết kế theo phong cách cổ điển nên sử dụng gam màu vàng sẽ gợi sự cao sang quyền quý cũng như vẻ đẳng cấp cho gia đình. Hơn nữa hòa quyện với gam màu vàng chính là màu trắng tinh khôi để làm điểm nhấn cũng như gợi sự trang nhã hơn cho thiết kế.
Cùng với tone màu chủ đạo thì việc sử dụng đá tự nhiên cũng mang gam màu vàng tại trụ cổng và tầng 1 đã tạo sự đồng nhất, hài hòa và mang đến cảm giác chắc chắn, bền vững cho kiến trúc. Và đây cũng chính là điểm thu hút ánh nhìn của người đối diện.

Phối cảnh view 2 - Thiết kế nhà phố cổ điển 4 tầng mặt tiền 6m 4 phòng ngủ diện tích 90m2 NP13125
Mẫu nhà phố cổ điển mặt tiền 6m 4 phòng ngủ có hình khối thu hút
Trong phối cảnh thứ 2 của mẫu thiết kế nhà phố 4 tầng cổ điển này bạn có thể thấy hình khối của ngôi nhà cũng là điểm nhấn song hành cùng với màu sắc. Ngôi nhà tuy không quá đồ sộ hay bề thế về hình khối như các thiết kế cổ điển trước kia mà thay vào đó là những hình khối khá đơn giản nhưng vẫn mang đến hơi thở cổ điển cho nhà phố mặt tiền 6m này. Do diện tích xây dựng không quá rộng nên chúng tôi đã sử dụng những hình khối đắt nhất của phong cách cổ điển để làm nổi bật ngôi nhà .
Tuy hình khối đơn giản nhưng vẫn gợi được cảm giác bền vững, chắc chắn cho thiết kế. Hơn nữa cùng với hình khối thì hệ thống cột trụ đỡ phần mái hiên tầng 3, tầng 4 cũng như phần đua ra của kiến trúc. Điều này vừa gợi sự vững chắc cho ngôi nhà, bên cạnh đó hệ thống cột đỡ đã liên kết với nhau tạo thành 1 giàn cây leo khá bắt mắt.
Nói đến phong cách cổ điển thì không thể bỏ qua chi tiết mái vòm tại các tầng, cũng như trên các cửa chính. Điều này vừa gợi sự trang nhã vừa mang đến cảm giác về tầm cao cho ngôi nhà cũng như cảm giác ánh sáng, gió tự nhiên được đưa vào từ tầm cao tạo sự thoải mái giống như máy điều hòa không khí.

Phối cảnh view 3 - Thiết kế nhà phố cổ điển 4 tầng 4 phòng ngủ diện tích 90m2 NP13125
Mẫu nhà phố 4 tầng cổ điển 4 phòng ngủ có thiết kế mái cầu kì, công phu
Phối cảnh thứ 3 hiện lên với sự chi tiết về thiết kế mái, hệ thống cửa cũng như các chi tiết trang trí của ngôi nhà. Đầu tiên là về phần mái nhà của mẫu thiết kế nhà phố cổ điển 4 tầng 4 phòng ngủ. Mái nhà là 1 hệ thống mái dốc nối tiếp nhau theo từng bậc, ở tầng 3, 4 thì đây là mái hiên che chắn cho không gian bên trong của các tầng. Còn mái chính ở trên cùng là chiếc mũ bao lấy toàn bộ thiết kế tạo sự bảo vệ từ tầm cao cho ngôi nhà. Phần mái nhà không chỉ mang đến cảm giác mát mẻ mà còn gợi lên sự gần gũi khi sử dụng ngói đỏ truyền thống. Đây có lẽ là chí tiết làm ngôi nhà nổi bật giữa không gian mà còn là sự so sánh với thiết kế nhà phố 6x15m 4 tầng trước đó.
Thiết kế nhà phố mặt tiền 6m 4 tầng 4 phòng ngủ có chi tiết trang trí nổi bật
Tiếp theo là chi tiết trang trí được tạo nên từ những nét phài chỉ sắc sảo cùng với đó là những đường gờ đắp nổi mang đến cảm giác cầu kì, cũng như vẻ tinh tế cho kiến trúc. Các đường nét trang trí này sử dụng gam màu trắng để tạo sự nổi bật trên tone màu chủ đạo. Với các chi tiết trang trí này ngôi nhà sẽ mang vẻ mềm mại, hút mắt khác hẳn với những ngôi nhà phố hiện nay.
Bên cạnh đó kiến trúc nhà phố 4 tầng cổ điển còn có hệ thống đèn trang trí tại các cột trụ. Điều này tạo điểm nhấn kiến trúc vào ban ngày và vẻ lung linh khi đêm xuống. Ngoài ra bạn có thể thế hệ thống cây xanh được chúng tôi rất quan tâm và bố trí khá nhiều để tạo độ thoáng, cảm giác gần gũi với thiên nhiên cho ngôi nhà. Có thể nói đây là điểm nhấn mà không phải thiết kế nhà phố nào cũng có được.

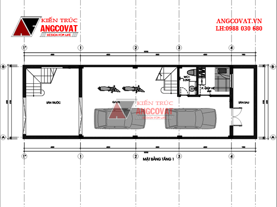
Mặt bằng tầng 1 - Thiết kế nhà phố cổ điển 4 tầng 4 phòng ngủ kích thước 6x15m NP13125
Thiết kế nhà phố cổ điển 4 tầng 4 phòng ngủ kích thước 6x15m có các mặt bằng chi tiết
Mặt bằng tầng 1 được bố trí sân trước làm khoảng chờ trước khi bước vào không gian bên trong nhà. Tiếp theo đó là không gian gara để xe, gara gần như chiếm trọn diện tích của tầng 1. Gara với rộng với sức chứa 2 ô tô, 2 xe máy tạo sự thuận lợi trong đi lại và sih hoạt của cả gia đình.
Bên cạnh đó tầng 1 còn bố trí 1 phòng ngủ xinh xắn cho người giúp việc. Không gian phòng có nội thất thiết yếu cũng như khu vệ sinh khép kín để thuận tiện trong sinh hoạt.

Mặt bằng tầng 2 - Thiết kế nhà phố cổ điển 4 tầng mặt tiền 6m tại Thái Nguyên NP13125
Mẫu nhà phố cổ điển 4 tầng mặt tiền 6m - Mặt bằng tầng 2
Mặt bằng tầng 2 được bố trí không gian phòng khách, phòng thờ và phòng bếp ăn. Bạn có thể thấy không gian phòng thờ được bố trí tại trung tâm không gian của tầng 2, đây chính là không gian trang trạng và linh thiêng của gia đình bạn. Có thể nói phòng thờ chích là không gian ngăn cách phòng thờ với phòng bếp ăn để đam bảo công năng sử dụng.
Đối xứng với phòng bếp ăn thông qua phòng thờ chính là không gian phòng khách. Phòng khách được đặt phía bên trái của ngôi nhà và có nội thất tinh tế có ban công rộng hướng ra thiên nhiên bên ngoài để mang lại cảm giác thoải mái, gần gũi với thiên nhiên. Bạn sẽ cảm nhận được nét tinh tế cũng như cảm thấy tự tin khi tiếp khách tại không gian sang trọng này.
Cuối cùng là không gian phòng bếp ăn tinh tế mang đến sự ấm cúng cũng như tạo cho bạn và gia đình những bữa cơm ngon, đầm ấm. Đây cũng chính là sợi dây gắn kết các thành viên trong gia đình bạn lại với nhau.

Mặt bằng tầng 3 - Thiết kế nhà phố cổ điển 4 tầng mặt tiền 6m diện tích 90m2 tại Thái Nguyên NP13125
Mẫu nhà phố cổ điển 4 tầng mặt tiền 6m diện tích 90m2 - Mặt bằng tầng 3
Tầng 3 được thiết kế đối xứng giống như tầng 2 khi có 2 phòng ngủ 2 bên và phòng sinh hoạt chung ở giữa. Không gian sinh hoạt chung là nơi cả gia đình bạn quây quần bên nhau cùng trò chuyện, chia sẻ buồn vui trong cuộc sống để tình cảm gia đình thêm gắn bó.
Không gian 2 phòng ngủ được bố trí nội thất thiết yếu cũng như có khu vệ sinh khép kín mang đến sự thuận tiện trong sinh hoạt, nghỉ ngơi dành cho các thành viên trong gia đình. Đây có lẽ là không gian riêng tư à cá tính dành cho mỗi thành viên trong gia đình bạn.

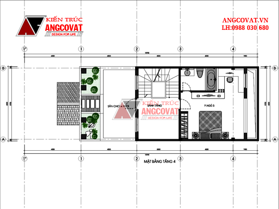
Mặt bằng tầng 4 - Thiết kế nhà phố cổ điển 4 tầng 6x15m 4 phòng ngủ đẹp tại Thái Nguyên NP13125
Mẫu nhà phố cổ điển 4 tầng 6x15m 4 phòng ngủ - Mặt bằng tầng 4
Mặt bằng tầng 4 hiện lên với không gian của 1 phòng ngủ và khu sân chơi + phơi. Không gian tầng vừa là nơi nghỉ ngơi vừa là nơi bạn có thể kết hợp giữa vui chơi với phơi đồ rất thuận tiện. Có thể nói với những không gian này ngôi nhà phố cổ điển 4 tầng trở nên đẹp hơn và hoàn hảo hơn.

Mặt đứng A-B - Thiết kế nhà phố cổ điển 4 tầng mặt tiền 6m tại Thái Nguyên NP13125
Mặt đứng trục A-B cho bạn biết ngôi nhà phố có mặt tiền 6m, chiều cao tầng 1 là 2,7m, tầng 2 là 3,6m, tầng 3 là 3,6m, tầng 4 là 3,6m, chiều cao mái là 2m7.

Mặt đứng 4-1" - Thiết kế nhà phố cổ điển 4 tầng mặt tiền 6m kích thước 6x15m 4 phòng ngủ NP131425
Mặt đứng trục 4-1" bạn có thể thấy chiều sâu của ngôi nhà là 15m. Bên cạnh đó thì chúng tôi còn phương án thiết kế nhà phố 6x15m hiện đại đẹp để bạn tham khảo cũng như có đánh giá, so sánh trước khi có quyết định cuối cùng.
Ngoài ra bạn cũng có thể ngắm nhìn thêm những mẫu thiết kế nhà ống 4 tầng 1 mặt tiền có kích thước giống với mẫu nhà phố 4 cổ điển này. Ngay sau đây là hình ảnh về mẫu thiết kế nhà ống 4 tầng tuyệt đẹp đó tại Lào Cai

Phối cảnh - Thiết kế nhà ống 4 tầng mặt tiền 6m 4 tầng đẹp tại Lào Cai.
Có thể nói cả 2 mẫu thiết kế có cùng kích thước, diện tích nhưng mỗi thiết kế lại mang một vẻ đẹp, một công năng sử dụng riêng biệt để mang đến không gian sinh hoạt, nghỉ ngơi hoàn hảo cho gia đình. Đây có lẽ là những thiết kế đẹp và có lẽ sẽ trở thành xu hướng của kiến trúc trong thời gian tới. Vậy bạn còn chờ đợi gì mà không liên hệ ngay với chúng tôi để sở hữu một ngôi nhà trong mơ.
Mọi thông tin chi tiết mời liên hệ: 0988 030 680
Gửi yêu cầu tư vấn
Khách hàng vui lòng gọi điện vào hotline, Gửi yêu cầu tư vấn, Comment yêu cầu tư vấn dưới mỗi bài viết. Chúng tôi sẽ xử lý và trả lời yêu cầu tư vấn khách hàng trong 8h làm việc.
CÔNG TY CỔ PHẦN KIẾN TRÚC VÀ ĐẦU TƯ XÂY DỰNG ANG
Trụ sở: 211 - Khương Trung - Thanh Xuân - Hà Nội
Văn phòng: Số 137 Nguyễn Xiển - Thanh Xuân - Hà Nội.
Chi nhánh HCM: KDC Thới An, phường Thới An ,quận 12, TPHCM.
Chi nhánh Đà Nẵng: 268-270 đường 30/4, Quận Hải Châu, TP Đà Nẵng.
Hotline: 0988030680 - Tel: 02466622256 - Email: angcovat.vn@gmail.com

Bình luận