Thiết kế mẫu nhà 3 tầng hình chữ L mái ngói 130m2 ở Bắc Ninh BT127115
https://angcovat.vn/biet-thu/biet-thu-3-tang/392-thiet-ke-mau-nha-3-tang-hinh-chu-l-mai-ngoi-130m2-o-bac-ninh-bt127115.html#sigProId1d715c079b
Mẫu nhà 3 tầng hình chữ L mái ngói 130m2 mặt tiền 10m, chiều sâu 14.5m được xây dựng trên ô đất 270m2 với kinh phí đầu tư dự kiến 1.8 - 2 tỷ VND ở Bắc Ninh.
Mẫu nhà 3 tầng hình chữ L mặt tiền 10m là sản phẩm kiến trúc hoàn hảo được đội ngũ kiến trúc sư gồm anh Lê Văn Việt và anh Lê Văn Hai của công ty kiến trúc Angcovat thiết kế dành cho gia đình ông Thái. Mẫu nhà 3 tầng hình chữ L được thiết kế không chỉ đảm bảo công năng, sở thích của chủ đầu tư mà còn mang đến sự hoàn thiện kĩ thuật và tính thẩm mỹ cao. Hãy cùng Angcovat.vn khám phá kiến trúc của mẫu biệt thự 3 tầng đẹp này nhé.
Khái quát thông tin mẫu nhà 3 tầng hình chữ L mái ngói ở Tiên Du - Bắc Ninh
|
BT127115 |
|
03 |
|
Ông Thái |
|
Tiên Du - Bắc Ninh |
|
10m |
|
14.5m |
|
15x18m = 270m2 |
|
Lê Văn Việt + Lê Văn Hai |
|
2016 |
|
1.8 - 2 tỷ VND |
|
Tầng 1: 1 phòng khách, 1 phòng bếp, 1 phòng ngủ, 2 phòng vệ sinh - diện tích tầng 1: 130m2 Tầng 2: 3 phòng ngủ, 3 phòng vệ sinh - diện tích tầng 2: 130m2 Tầng 3: 1 phòng thờ, 1 phòng ngủ, 1 sân chơi, 1 phòng giặt + phơi đồ, 1 phòng vệ sinh chung - diện tích tầng 3: 72m2 ( không gian sử dụng ) |
Tổng quan phối cảnh mẫu nhà 3 tầng hình chữ L diện tích 130m2 giá từ 1.8 - 2 tỷ VND
Thiết kế mẫu nhà 3 tầng hình chữ L ở Bắc Ninh, kiến trúc sư đã thiết kế khu mặt tường chữ A giáp mái nhà là các thanh lam tường màu trắng giống hình nan quạt, các mảng tường chìm xen kẽ được sơn màu nâu đậm tạo điểm nhấn kiến trúc thu hút sự chú ý của người nhìn.
Khối chân tường mẫu thiết kế nhà hình chữ L được ốp đá hoa cương hoa văn màu ghi. Đá hoa cương màu ghi sẫm không chỉ có tác dụng trang trí, tạo vẻ bề thế và khỏe khoắn cho kiểu nhà chữ L 3 tầng mà còn có khả năng chống nấm mốc, chống thấm nước, dễ lau chùi vệ sinh, đảm bảo sự sạch sẽ cho khối chân tường nhà.

Phối cảnh 1: Mẫu nhà 3 tầng hình chữ L mái ngói đẹp
Thiết kế mẫu nhà 3 tầng hình chữ L ở Tiên Du - Bắc Ninh với tone ngoại thất màu trắng kem sang trọng.
Mẫu biệt thự hiện đại 3 tầng hình chữ L mái ngói đỏ ở Bắc Ninh được kiến trúc sư thiết kế tone ngoại thất màu trắng kem tạo điểm nhấn nổi bật thu hút sự chú ý của người nhìn. Màu trắng kem là tone màu thân thiện, thể hiện sự sự trong sạch và đơn giản. Hiện nay, trong các công trình kiến trúc nhà ở, nhiều gia chủ lựa chọn màu trắng kem để thiết kế cho ngôi nhà của mình để tôn lên vẻ sang trọng mà không phô trương.
Tư vấn thiết kế nhà hình chữ L 3 tầng cho gia đình ông Thái, chúng tôi khuyên ông Thái cùng quý vị nên lựa chọn những dòng sơn ngoại thất tích hợp nhiều ưu điểm như khả năng chống thấm nước, chống mọc rêu mốc, chống hấp thụ nhiệt và độ bền màu cao. Qúy vị có thể tìm hiểu một số dòng sơn ngoại thất siêu bóng của Mykolor hoặc của Dulux để lựa chọn cho mẫu biệt thự đẹp của mình màu sơn vừa đẹp vừa phù hợp với khả năng kinh tế của gia đình.
Bố trí hệ cửa kính khung gỗ lấy sáng cho mẫu nhà 3 tầng hình chữ L diện tích 130m2
Thiết kế mẫu nhà 3 tầng hình chữ L mái thái đẹp, chúng tôi sử dụng cửa kính khung gỗ cao cấp để lấy sáng và đón gió cho không gian nội thất. Với hệ cửa kính được phân bố ở nhiều phòng chức năng, gia chủ sẽ không phải sử dụng nhiều đèn điện chiếu sáng nội thất. Đặc biệt không gian nội thất lúc nào cũng thoáng đãng và mát mẻ.
Trong mẫu nhà chữ L 3 tầng, chúng tôi đã bố trí hệ cửa đa dạng : Cửa đi 4 cánh có 2 cánh mở trượt, cửa sổ 2 cánh mở trượt và cửa sổ 4 cánh mở trượt khóa bán nguyệt. Các hệ cửa đều được ép khung gỗ cao cấp có khả năng chống nấm mốc, chống bám bẩn, dễ lau chùi như mới mà không bị cong vênh. Hệ cửa kính khung gỗ không chỉ đảm bảo tính thẩm mỹ cho kiểu nhà chữ L ở Bắc Ninh mà còn đảm bảo sự bền vững và trường tồn với thời gian. Gia chủ sẽ không phải sửa chữa hoặc thay thế tốn kém chi phí trong quá trình sử dụng.
Tại tầng 2 của kiểu nhà chữ L ở Bắc Ninh, kiến trúc sư đã thiết kế ban công rộng để các thành viên trong gia đình vui chơi ngắm cảnh. Ban công tầng 2 có mái che là giàn lam gỗ kết hợp vách kính cường lực đảm bảo độ sáng và che chở cho không gian. Bên cạnh đó, ở các sphofng chức năng trên tầng 2 và tầng 3, kiến trúc sư đã khéo léo bố trí ban công nhỏ để gia chủ trồng các loài hoa yêu thích.

Phối cảnh 2: Thiết kế mẫu nhà 3 tầng hình chữ L ở Tiên Du - Bắc Ninh
Hình ảnh mẫu nhà 3 tầng hình chữ L ở Bắc Ninh nổi bật với hệ mái ngói thái màu đỏ sẫm
Quan sát tổng thể mẫu nhà mái thái 3 tầng hình chữ L ở Bắc Ninh, có thể thấy ngôi nhà được thiết kế nổi bật với két cấu mái ngói thái màu đỏ sẫm. Hệ mái ngói thái được đổ bê tông sau đó dán ngói thái chất lượng cao đảm bảo che chắn nắng, mưa, gió bão cho không gian nội thất mau nha 3 tang hinh chu L. Hệ mái ngói thái có màu đỏ sẫm tượng trưng cho sự thành đạt, năng động và nhiệt huyết.
Với dáng mái xuôi 2 chiều đăng đối theo hình tam giác, hệ mái ngói thái không chỉ được thiết kế làm phần mái đầu nhà bảo vệ ngôi nhà mà còn được bố trí làm mái hiện ở các tầng che chở không cho nắng mưa tạt vào không gian các tầng.
Đặc biệt, tại phần kết cấu bao che, kiến trúc sư đã lựa chọn loại ngói màu Cpac màu đỏ sẫm để tạo lớp lợp bền vững. Lớp lợp gồm hàng ngàn các viên ngói màu Cpac có độ uốn cao, bề mặt mịn, màu sắc đẹp có khả năng chống nấm mốc, chống thấm nước, chống hấp thụ nhiệt và trọng lượng nhẹ hơn đến 20% so với các loại ngói truyền thống. Các viên ngói màu Cpac có kích thước trung bình đạt 330x400x15mm ( 10 viên/1 m2 ) được thiết kế theo đúng yêu cầu kĩ thuật, đảm bảo sự hoàn thiện kết cấu mái cho ngôi nhà.
Ngoài ra, chúng tôi cũng đã tham khảo mức giá trên thị trường, ngói màu Cpac có mức giá dao động từ 80.000 - 95.000 vnd/m2 ngói sẽ là mức giá hợp lý phù hợp với điều kiện kinh tế của nhiều hộ gia đình hiện nay. Loại ngói này cũng được ứng dụng trong nhà đẹp 3 tầng 1 tum
Phân tích mặt bằng mẫu nhà 3 tầng hình chữ L 10x14.5m diện tích 130m2 trên ô đất 270m2

Mặt bằng tổng thể mẫu nhà 3 tầng hình chữ L với ô đất hình vuông 270m2
Mẫu thiết kế biệt thự đẹp 3 tầng hình chữ L có mặt tiền 10m, chiều sâu 14.5m, do ngôi nhà được thiết kế theo hình chữ L nên tổng diện tích mặt bằng là 130m2. Mẫu nhà chữ L 3 tầng tọa lạc trên ô đất hình vuông 15x18m, tổng diện tích là 270m2, xung quanh ngôi nhà là khoảng sân rộng rãi được ốp gạch lát sân cao cấp Hạ Long.

Mặt bằng tầng 1 - Mẫu nhà 3 tầng hình chữ L kích thước 10x14.5m
Mặt bằng tầng 1 - Mẫu nhà 3 tầng hình chữ L kích thước 10x14.5m
Tầng 1 của mẫu nhà 3 tầng hình chữ L kích thước 10x14.5m có 1 phòng khách, 1 phòng bếp ăn, 1 phòng ngủ, 1 phòng vệ sinh chung.
Phòng khách của mau nha 3 tang hinh chu l có diện tích 22.5m2, không gian phòng khách được bố trí bộ bàn ghế kích thước lớn, kệ tivi lớn được đặt tại khu cửa sổ 4 cánh. Không gian phòng khách rất sang trọng nhờ trần nhà thạch cao màu trắng tinh tế kết hợp cùng màu sàn gỗ đậm tạo nên sự tương phản màu sắc thanh lịch.
Ngăn cách không gian phòng khách với phòng bếp là 1 bàn bar cách điệu có 3 ghế ngồi do chủ đầu tư muốn phòng khách và phòng bếp liên kết nhau. Khu phòng bếp 22.5m2 nổi bật với dãy bàn nấu ăn đặt sát tường và bộ bàn ăn hình chữ nhật 8 ghế tại giữa phòng. Không gian phòng bếp rộng và có 1 cửa phụ dẫn lối ra ngoài giúp người nội trợ đi chợ, di chuyển dễ dàng mà không gây ảnh hưởng đến phòng khách.
Khu sảnh tầng 1 có diện tích 11.5m2 tạo không gian di chuyển dễ dàng cho các thành viên trong gia đình. Phòng ngủ 1 của mẫu thiết kế nhà đẹp 3 tầng hình chữ L có diện tích 22m2 được bố trí phòng vệ sinh khép kín 4.5m2. Trong phòng ngủ 1 có giường, tủ quần áo, bàn làm việc và kệ tivi đáp ứng nhu cầu sử dụng của chủ nhân. Ngoài ra kiến trúc sư cũng thiết kế 1 phòng vệ sinh sát cầu thang lên tầng đáp ứng nhu cầu sử dụng của các thành viên trong gia đình.

Mặt bằng tầng 2 - Mẫu nhà 3 tầng hình chữ L diện tích 130m2
Mặt bằng tầng 2 - Mẫu nhà 3 tầng hình chữ L diện tích 130m2
Tầng 2 của mẫu nhà 3 tầng hình chữ L ở Bắc Ninh có 3 phòng ngủ vệ sinh khép kín và 1 sân chơi. Phòng ngủ 2 diện tích 22m2, phòng ngủ 3 diện tích 22.5m2 và phòng ngủ 4 có diện tích 15.6m2. Các phòng vệ sinh trong các phòng ngủ đều có diện tích 4.5m2. Trong các phòng ngủ chúng tôi đều bố trí giường ngủ, tủ quần áo, bàn làm việc, kệ tivi đáp ứng nhu cầu và sở thích của từng chủ nhân các phòng. Hệ cửa sổ và ban công trồng hoa có tác dụng tích cực trong việc điều hòa không gian, giúp chủ nhân thư giãn nghỉ ngơi.
Khu sảnh tầng 2 có diện tích 9.5m2, khu sân chơi 15.6m2 là không gian vui chơi, ngắm cảnh cho các thành viên trong gia đình.

Mặt bằng tầng 3 - Thiết kế mẫu nhà 3 tầng hình chữ L ở Bắc Ninh
Mặt bằng tầng 3 - Thiết kế mẫu nhà 3 tầng hình chữ L ở Bắc Ninh
Tầng 3 của mẫu thiết kế nhà 3 tầng hình chữ L diện tích 130m2 có 1 phòng thờ, 1 phòng ngủ, 1 phòng vệ sinh và khu giặt phơi đồ.
Phòng thờ tại tầng 3 có diện tích 22.5m2 được bố trí bộ bàn thờ kích thước lớn, giữa phòng là khu bàn dài để nghỉ ngơi, bên cạnh bàn thờ có 2 chậu cây cảnh giúp điều hòa không gian.
Phòng ngủ 5 có diện tích 15.6m2 có giường, tủ quần áo, bàn làm việc và phòng vệ sinh khép kín. Ngoài ra tầng 3 còn có khu giặt phơi đồ 10m2 và khu sảnh tầng 9.5m2 đáp ứng nhu cầu sử dụng của các thành viên trong gia đình. Công năng sử dụng tham khảo thêm tại thiết kế nhà 3 tầng đơn giản

Mặt bằng mái - Mẫu nhà 3 tầng hình chữ L
Khác với dáng mái Basat của mẫu thiết kế biệt thự sang trọng ở Hà Nội, hệ mái thái của mẫu nhà 3 tầng hình chữ L được thiết kế có dáng mái xuôi 2 chiều, độ dốc cao đảm bảo quá trình thoát nước dễ dàng mà không gây vấn đề dột úng nước cho không gian nội thất.

Mặt đứng trục 1-3: Mẫu nhà 3 tầng hình chữ L diện tích 130m2
Các thông số kiến trúc đều được thể hiện rõ nét và chi tiết trong hồ sơ thiết kế, đảm bảo chủ đầu tư và đơn vị thi công dễ đọc và hiểu.

Mặt đứng D-A: Mẫu nhà 3 tầng hình chữ L mái ngói đẹp
Hệ mái ngói thái được thiết kế làm mái hiện cho các khung cửa sổ.

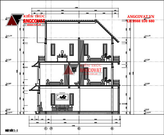
Mặt cắt 1-1: Mẫu nhà 3 tầng hình chữ L ở Bắc Ninh
Hình ảnh mặt cắt 1-1 sẽ giúp quý vị hình dung rõ nét hơn về không gian nội thất của mẫu nhà 3 tầng hình chữ L ở Bắc Ninh

Mặt cắt 2-2: Mẫu nhà 3 tầng hình chữ L diện tích 130m2
Thiết kế mẫu nhà 3 tầng hình chữ L diện tích 130m2 cho gia đình ông Thái ở Bắc Ninh, chúng tôi đã hoàn thành phương án thiết kế sát theo yêu cầu của chủ đầu tư. Với kiến trúc bề thế, vững chãi của mẫu nhà 3 tầng hình chữ L mặt tiền 10m này, chúng tôi tin chắc rằng đây là không gian sống tuyệt vời dành cho các thành viên trong gia đình ông Thái.
Xem thêm mẫu nhà đẹp tại: Biệt thự tân cổ điển Pháp
Thông tin chi tiết mời liên hệ: 0988 030 680
Gửi yêu cầu tư vấn
Khách hàng vui lòng gọi điện vào hotline, Gửi yêu cầu tư vấn, Comment yêu cầu tư vấn dưới mỗi bài viết. Chúng tôi sẽ xử lý và trả lời yêu cầu tư vấn khách hàng trong 8h làm việc.
CÔNG TY CỔ PHẦN KIẾN TRÚC VÀ ĐẦU TƯ XÂY DỰNG ANG
Trụ sở: 211 - Khương Trung - Thanh Xuân - Hà Nội
Văn phòng: Số 137 Nguyễn Xiển - Thanh Xuân - Hà Nội.
Chi nhánh HCM: KDC Thới An, phường Thới An ,quận 12, TPHCM.
Chi nhánh Đà Nẵng: 268-270 đường 30/4, Quận Hải Châu, TP Đà Nẵng.
Hotline: 0988030680 - Tel: 02466622256 - Email: angcovat.vn@gmail.com

Bình luận