Thiết kế khách sạn mini tiêu chuẩn 2 sao 10x25m KS33125
https://angcovat.vn/du-an/thiet-ke-khach-san/258-thiet-ke-khach-san-mini-tieu-chuan-2-sao-10x25m-ks33125.html#sigProIdb31762ceed
Nhắc đến Đà Nẵng, người ta nghĩ ngay đến thành phố xanh, sạch đẹp của Việt Nam. Sở hữu nhiều cảnh đẹp và danh lam thắng cảnh nổi tiếng, Đà Nẵng trở thành điểm thu hút khách du lịch nổi tiếng trong nước và trên Thế giới. Đáp ứng nhu cầu du lịch, nghỉ ngơi của các du khách, công ty cổ phần thương mại và dịch vụ Bảo Lâm Phương tiếp tục mở rộng chi nhánh khách sạn của mình ra nhiều địa điểm nổi tiếng của Đà Nẵng. Một trong số đó là mẫu thiết kế khách sạn mini tiêu chuẩn 2 sao được thiết kế ngay sát đường Phạm Văn Đồng - Sơn Trà - Đà Nẵng.
Thiết kế khách sạn mini tiêu chuẩn 2 sao có mặt tiền 10m, chiều sâu 25m, tổng diện tích sàn là 2.500m2 được xây dựng trên ô đất 15x25m với kinh phí đầu tư dự kiến 20 tỷ VND do kiến trúc sư Phạm Thành Tư của công ty kiến trúc Angcovat thiết kế. Mẫu thiết kế khách sạn mini do công ty cổ phần thương mại và dịch vụ Bảo Lâm Phương làm chủ đầu tư được thiết kế với kiến trúc hội tụ đủ tiêu chuẩn 2 sao, mẫu thiết kế khách sạn mini tiêu chuẩn 2 sao được thiết kế không chỉ đảm bảo công năng sử dụng, sự hoàn thiện kĩ thuật cao mà còn sở hữu vẻ đẹp thẩm mỹ đặc sắc.
Ngày hôm nay, Angcovat.vn xin phép khái quát những đặc trưng cơ bản về mẫu thiết kế khách sạn mini tiêu chuẩn 2 sao ở Sơn Trà - Đà Nẵng
Thông số mẫu thiết kế khách sạn mini tiêu chuẩn 2 sao do kiến trúc sư Phạm Thành Tư thiết kế
|
KS33125 |
|
01 tầng hầm + 10 tầng nổi |
|
Công ty cổ phần thương mại và dịch vụ Bảo Lâm Phương |
|
Đường Phạm Văn Đồng - Phường An Hải Bắc - Sơn Trà - Đà Nẵng |
|
10m |
|
25m |
|
15x25m |
|
Phạm Thành Tư |
|
2014 |
|
20 tỷ VND |
|
- Tầng hầm: gara để xe, phòng kĩ thuật điện nước, khu thang thoát hiểm, khu thang máy - diện tích 250m2 - Tầng 1: Sảnh chính, khu reception, khu sảnh chờ, phòng quản lý + kế toán, phòng kĩ thuật tổng đài, khu vệ sinh chung, thang thoát hiểm, thang máy - diện tích 250m2 - Mặt bằng tầng 2 đến tầng 9 gồm: 4 phòng ngủ đơn ( 2 phòng thường, 2 phòng vip ); 1 phòng ngủ đôi, 1 phòng ngủ ba, khu thang thoát hiểm, thang máy - diện tích 250m2 - Tầng 10: 1 phòng ngủ nhân viên, 2 phòng kĩ thuật, khu sân thượng, thang thoát hiểm, thang máy - diện tích 250m2 - Tầng áp mái: Phòng đặt téc nước và điều hòa tổng, khu phòng giặt, sân thượng - diện tích 200m2 - Tầng lửng: Khu điểm tâm sáng, khu bếp ăn, thang thoát hiểm, thang máy - diện tích 130m2 - Tổng diện tích sàn: 2.500m2 - Bể bơi 4x10m |
Chiêm ngưỡng mẫu thiết kế khách sạn mini tiêu chuẩn 2 sao phong cách hiện đại ở Đà Nẵng
Mẫu thiết kế khách sạn mini tiêu chuẩn 2 sao do công ty cổ phần thương mại và dịch vụ Bảo Lâm Phương làm chủ đầu tư tọa lạc tại khu đất bằng phẳng nằm cạnh mặt đường Phạm Văn Đồng, Phường An Hải Bắc, Sơn Trà, Đà Nẵng.

Phối cảnh 1: Thiết kế khách sạn mini tiêu chuẩn 2 sao ở Đà Nẵng
Mẫu thiết kế khách sạn mini tiêu chuẩn 2 sao ở Đà Nẵng nổi bật với khối kiến trúc hiện đại
Mẫu thiết kế khách sạn mini tiêu chuẩn 2 sao ở Đà Nẵng được thiết kế theo phong cách hiện đại. Các mảng tường, các khối trụ của khách sạn được thiết kế vuông vắn, khỏe khoắn. Nhắc đến kiến trúc hiện đại, người ta thấy ngay hệ phào chỉ tinh tế, tuy được thiết kế đơn giản, không cầu kì như các mẫu khách sạn cổ điển nhưng vẫn toát lên vẻ sang trọng và hiện đại.
Đặc biệt, mẫu thiết kế khách sạn mini tiêu chuẩn 2 sao sử dụng kính cường lực làm hệ cửa chính và cửa sổ. Kính cường lực là kính thông thường được gia nhiệt từ 680 - 700 độ C sau đó sẽ làm nguội dần bằng hơi khí mát do đó kính cường lực có khả năng cách âm, cách nhiệt, chống ồn và chống khói ồn ô nhiễm, giúp lấy ánh sáng tự nhiên, mang lại sự chắc chắn an toàn, không gian trẻ trung năng động và phù hợp với diện tích nhỏ. Đặc biệt chất liệu kính là vật liệu không thể thiếu khi thiết kế xây dựng khách sạn hiện đại ngày nay.
Hiện nay trên thị trường, sản phẩm kính cường lực có giá cả khác nhau tùy thuộc vào độ dày của kính, giá cả chênh lệch tùy thuộc vào đơn vị phân phối, tuy nhiên giá kính cường lực dao động trọng khoảng 5mm (400.000 VND/m2), 8mm (550.000 VND/m2), 10mm (650.000 VND/m2), 12mm (750.000 VND/m2), 15mm (1350.000 VND/m2).
Đặc biệt, kiến trúc sư Phạm Thành Tư đã thiết kế với kết cấu mái phẳng phù hợp tiêu chuẩn thiết kế khách sạn 2 sao theo phong cách hiện đại. Kết cấu mái phẳng được thiết kế đảm bảo sự hoàn thiện kĩ thuật nên có khả năng chống thấm nước, chống nắng, mưa, gió bão và đảm bảo không gian nội thất.

Phối cảnh 2: Mẫu thiết kế khách sạn mini tiêu chuẩn 2 sao do kiến trúc sư Phạm Thành Tư thiết kế
Mẫu thiết kế khách sạn mini tiêu chuẩn 2 sao sở hữu 1 bể bơi rộng 4m, sâu 10m. Bên cạnh bể bơi là khu sân gỗ được bố trí nhiều bộ giường nghỉ đáp ứng nhu cầu nghỉ ngơi, thư giãn của khách.
Thiết kế khách sạn mini tiêu chuẩn 2 sao giá 20 tỷ VND với sơn trắng ngoại thất đẹp mê mẩn lòng người
Khác với tone màu vàng ghi của mẫu thiết kế khách sạn 2 sao 8 tầng ở Hưng Yên, mẫu thiết kế khách sạn mini tiêu chuẩn 2 sao ở Đà Nẵng được thiết kế nổi bật với tone ngoại thất màu trắng kem tinh tế. Màu trắng được mệnh danh là gam màu " Càng đơn giản càng đẹp ", do đó, nếu sử dụng màu trắng cho ngoại thất mẫu thiết kế khách sạn 2 sao phong cách hiện đại thì sẽ mang đến hiệu quả thẩm mỹ cao.
Ngắm mẫu thiết kế khách sạn mini tiêu chuẩn 2 sao, có thể thấy tone sơn màu trắng được bao phủ trên tất cả các khối tường ngoại thất từ tầng 2 trở cho đến tầng áp mái. Tone màu trắng của mẫu thiet ke khach san mini mang đến cảm giác an toàn, thân thiện, đồng thời màu trắng cũng có tác dụng mở rộng không gian rất tốt.
Khi lựa chọn màu sơn ngoại thất cho khách sạn được bền lâu, chúng tôi khuyên các bạn nên lựa chọn những dòng sơn ngoại thất cao cấp bền màu, chống nấm mốc, rong rêu, ố vàng. Đặc biệt nếu chọn màu sơn bóng sẽ làm cho mảng sơn trở nên sang trọng hơn rất nhiều.
Trong những dòng sơn ngoại thất hiện nay trên thị trường, bạn có thể chọn lựa 2 dòng: Sơn Mykolor Ultra (siêu bóng - giá 1.158.000/4.37lit) hoặc dòng sơn Mykolor Semigloss ( bóng - giá 796.000 VND/4.37 lít ), đây là những dòng sơn cao cấp có khả năng chống thấm nước, chống bẩn tốt.
Ngoài ra, khu vực tầng hầm của mẫu thiết kế khách sạn mini tiêu chuẩn 2 sao được ốp đá Granite Vàng thủy tinh có kích thước rộng 10mm - 900mm; Dài <3400mm; Dày 16-20mm có xuất xứ tại Việt Nam, hiện nay trên thị trường đá granite Vàng thủy tinh có giá dao động trong khoảng 1.250.000 VND/m2.

Đá Granite - đá hoa cương là sản phẩm cao cấp được sử dụng để ốp tường bởi khả năng chịu mài mòn, không bị rong mốc, chống rạn nứt công trình, đặc biệt do đá hoa cương rất dễ vệ sinh lau chùi nên được sử dụng ốp tường tầng hầm cho mẫu khách sạn tiêu chuẩn thiết kế khách sạn 2 sao ở Đà Nẵng. Đồng thời, cũng nhờ hệ đá granite trang trí nên ngoại thất mẫu thiết kế khách sạn mini càng trở nên sang trọng hơn.
Điểm qua một số hình ảnh về mặt bằng nội thất của mẫu thiết kế khách sạn mini tiêu chuẩn 2 sao kích thước 10x25m

Sơ đồ vị trí khu đất của mẫu thiết kế khách sạn mini tiêu chuẩn 2 sao
Mẫu thiết kế khách sạn mini tiêu chuẩn 2 sao có khu mặt tiền rộng 15m ( bao gồm cả khu bể bơi ), riêng chiều rộng của khách sạn là 10m. Chiều sâu của khách sạn là 25m.
Mẫu thiết kế khách sạn mini nằm sát đường Phạm Văn Đồng (rộng 9m ).

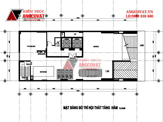
Mặt bằng tầng hầm - thiết kế khách sạn mini tiêu chuẩn 2 sao
Mặt bằng tầng hầm - thiết kế khách sạn mini tiêu chuẩn 2 sao
Tầng hầm của mẫu thiết kế khách sạn mini tiêu chuẩn 2 sao được thiết kế gồm gara để xe, phòng kĩ thuật điện nước, cầu thang thoát hiểm và cầu thang máy. Với mặt bằng diện tích tầng hầm rộng 250m2, đây là không gian lý tưởng làm gara để xe máy, ô tô và một số phương tiện giao thông của khách.
Ngoài ra các phòng kĩ thuật điện nước ở tầng hầm là nơi nhân viên kĩ thuật giám sát và làm việc bảo đảm sự vận hành nước đáp ứng nhu cầu sử dụng của khách sạn.

Mặt bằng nội thất tầng 1 - thiết kế khách sạn mini tiêu chuẩn 2 sao
Mặt bằng nội thất tầng 1 - thiết kế khách sạn mini tiêu chuẩn 2 sao
Mặt bằng bố trí nội thất tầng 1 của mẫu thiết kế khách sạn mini tiêu chuẩn 2 sao có diện tích mặt bằng 250m2. Từ tiền sảnh 40m2 đi vào, quý vị sẽ bắt gặp không gian đầu tiên là 2 khu vực sảnh chờ ở 2 bên sảnh chính được bố trí những bộ sofa kích thước lớn, mỗi khu phòng chờ có diện tích rộng khoảng 5.5x4m. Phần sảnh chính đầu tiên tính từ khi khách mở cửa bước vào được kiến trúc sư tạo điểm nhấn bằng cách thiết kế gạch ốp hoa văn tinh sảo.
Phía sau sảnh chờ bên phải là khu reception có để đội ngũ nhân viên tiếp nhận thông tin và hướng dẫn khách hàng sử dụng dịch vụ. Đối diện khu Reception, kiến trúc sư đã bố trí những bộ bàn ghế nhỏ xinh để các vị khách cùng ngồi uống nước.
Không gian sâu bên trong là cầu thang bộ lên tầng và khu cầu thang máy lên tầng. Ngoài ra, phía trong tầng 1 là phong quản lý kế toán, phòng kĩ thuật tổng đài và khu vệ sinh chung đáp ứng nhu cầu sử dụng của nhân viên và khách hàng.

Mặt bằng tầng lửng - thiết kế khách sạn mini tiêu chuẩn 2 sao
Tầng lửng của mẫu thiết kế khách sạn mini tiêu chuẩn 2 sao có diện tích 130m2. Tầng lửng bao gồm khu bếp nấu ăn (24m2)và khu điểm tâm sáng. Với không gian rộng rãi, mát mẻ, tầng lửng thực sự là không gian thư giãn, ăn uống lý tưởng cho khách hàng. Khu điểm tâm sáng diện tích khoảng 50m2 được bố trí 10 bộ bàn 4 ghế phục vụ nhu cầu ăn uống ngắm cảnh của khách.

Mặt bằng nội thất tầng 2 - 7 : Thiết kế khách sạn mini tiêu chuẩn 2 sao
Từ tầng 2 đến tầng 7 của mẫu thiết kế khách sạn mini tiêu chuẩn 2 sao, kiến trúc sư thiết kế khu phòng nghỉ là chủ yếu. Khu mặt bằng tầng 2 đến tầng 7 bao gồm 4 phòng ngủ đơn có vệ sinh khép kín, trong đó có 2 phòng ngủ đơn thương 20m2, và 2 phòng ngủ đơn vip 30m2. 1 phòng ngủ đôi có vệ sinh khép kín 20m2, và 1 phòng ngủ 3 22m2.
Trong các phòng ngủ, kiến trúc sư đã thiết kế đầy đủ các đồ dùng tiện nghi nội thất đầy đủ bao gồm giường ngủ đơn, giường ngủ đôi, giường ngủ 3, khu vệ sinh khép kín hiện đại có bồn tắm cao cấp, ngoài ra còn có tủ quần áo, bàn ghế tiếp khách.
Để đảm bảo kiến trúc đăng đối, không gian luôn thoáng đãng sạch sẽ và mát mẻ để khách hàng sử dụng luôn thoải mái, kiến trúc sư đã bố trí hệ cửa sổ kính có rèm chất lượng cao, chủ nhân căn phòng có thể điều chỉnh cường độ ánh sáng và gió trời tùy thích.
Cầu thang máy, thang bộ và khu cầu thang thoát hiểm dẫn lối lên các tầng, đặc biệt giao thông của chính trên các tầng được thiết kế theo dạng xương cá vừa giúp sử dụng hợp lý diện tích mặt bằng vừa đảm bảo sự thuận tiện cho người sử dụng.

Mặt bằng tầng 8-9: Thiết kế khách sạn mini tiêu chuẩn 2 sao
Khu tầng 8, tầng 9 của mẫu thiết kế khách sạn mini tiêu chuẩn 2 sao cũng được thiết kế và bố trí các phòng chức năng tương tự như tầng 2 đến tầng 7. Như vậy, tính từ tầng 2 đến tầng 9, chúng tôi thiết kế chủ yếu là các phòng ngủ đáp ứng nhu cầu sử dụng của quý khách hàng.

Thiết kế khách sạn mini tiêu chuẩn 2 sao - Mặt bằng nội thất tầng 10
Khu mặt bằng nội thất tầng 10 của mẫu thiết kế khách sạn mini tiêu chuẩn 2 sao bao gồm khu phòng ngủ nhân viên diện tích 22m2, 2 khu phòng kĩ thuật diện tích lần lượt là 22m2 và 45m2. Ngoài ra còn có khu sân thượng 40m2 đua ra phía trước. Đây là khu tầng kĩ thuật trung tâm điều hành sự hoạt động và các nội dung liên qua đến điện, nước...của toàn khách sạn.

Mặt bằng bố trí nội thất tầng áp mái - Thiết kế khách sạn mini tiêu chuẩn 2 sao
Khu tầng áp mái kiến trúc sư đã bố trí làm khu đặt téc nước và điều hòa tổng. Diện tích tầng áp mái là 200m2.

Mặt bằng mái - thiết kế khách sạn mini tiêu chuẩn 2 sao
Khu mặt bằng mái được bố trí các téc nước lớn đảo bảo lượng nước đủ để đáp ứng nhu cầu sử dụng của toàn khách sạn.

Mặt cắt mẫu thiết kế khách sạn mini tiêu chuẩn 2 sao ở Đà Nẵng
Dưới đây là một số hình ảnh về mặt đứng và mặt cắt của mẫu thiết kế khách sạn mini.

Mặt cắt 2: Thiết kế khách sạn mini tiêu chuẩn 2 sao giá 20 tỷ VND
Các chi tiết kĩ thuật và thông số vật liệu đều được thể hiện đầy đủ, chi tiết trong sơ đồ thiết kế để chủ đầu tư và đơn vị thi công dễ đọc và hiểu rõ.

Mặt đứng 1: Thiết kế khách sạn mini đạt tiêu chuẩn 2 sao với các phòng nghỉ hiện đại có tiện nghi đầy đủ, đáp ứng nhu cầu nghỉ ngơi, thư giãn của quý khách hàng.

Mặt đứng chính - thiết kế khách sạn mini tiêu chuẩn 2 sao phong cách hiện đại
Khu mặt tiền của mẫu thiết kế khách sạn mini tiêu chuẩn 2 sao phong cách hiện đại được thiết kế sạch sẽ, thoáng đãng, khu trước mặt tiền có khoảng sân rộng rãi, các chi tiết kiến trúc đẹp hiện đại thu hút sự chú ý của người qua đường.
Tổng thể khối kiến trúc của mẫu thiết kế khách sạn mini tiêu chuẩn 2 sao nổi bật với kiến trúc hiện đại, không chỉ sở hữu ngoại thất đẹp hiện đại, bề thế thu hút sự chú ý của người nhìn mà mẫu thiết kế khách sạn mini tiêu chuẩn 2 sao còn đảm bảo không gian nội thất sang trọng, cao cấp. Với sự hoàn thiện kĩ thuật cao, các phòng công năng đầy đủ, mẫu thiết kế khách sạn mini tiêu chuẩn 2 sao hứa hẹn sẽ mang đến cho quý khách hàng không gian nghỉ ngơi tuyệt vời.
Gửi yêu cầu tư vấn
Khách hàng vui lòng gọi điện vào hotline, Gửi yêu cầu tư vấn, Comment yêu cầu tư vấn dưới mỗi bài viết. Chúng tôi sẽ xử lý và trả lời yêu cầu tư vấn khách hàng trong 8h làm việc.
CÔNG TY CỔ PHẦN KIẾN TRÚC VÀ ĐẦU TƯ XÂY DỰNG ANG
Trụ sở: 211 - Khương Trung - Thanh Xuân - Hà Nội
Văn phòng: Số 137 Nguyễn Xiển - Thanh Xuân - Hà Nội.
Chi nhánh HCM: KDC Thới An, phường Thới An ,quận 12, TPHCM.
Chi nhánh Đà Nẵng: 268-270 đường 30/4, Quận Hải Châu, TP Đà Nẵng.
Hotline: 0988030680 - Tel: 02466622256 - Email: angcovat.vn@gmail.com

Bình luận